Model: Tomasz-65 (Tomasz Junior)
Powierzchnia: 25m2 (30m2 i 35m2 lub większe) + taras
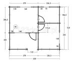
Domek letniskowy drewniany o wymiarach 6.20m x 5.20m z całkowicie zadaszonym tarasem o wymiarach 3.70m x 2.00m. Wewnątrz wydzielone duże pomieszczenie (tzw. pokój dzienny), sypialnia oraz łazienka. Dodatkowo obok domu znajduje się niezależne pomieszczenie gospodarcze (narzędziownia) o wymiarach 1.50m x 2.00m. Dom wyposażony w okiennice (opcja). Standardowe pokrycie dachu: papa bitumiczna. Możliwość pokrycia gontem bitumicznym (dowolny kolor i kształt).
Dom w wersji letniskowej: nieocieplony. Możliwość przystosowania do użytkowania całorocznego: ocieplenie wełną mineralną 100mm lub 150mm.
Istnieje możliwość wykonania domu w innych rozmiarach lub grubościach ściany (36mm, 45mm itp), np. :
– np. model Tomasz-87 (powierzchnia 35m2+taras 14m2) – kliknij tutaj>>
Inne rozmiary: do ustalenia

123Domki.pl to polski producent domków drewnianych, oferujący szeroki wybór modeli letniskowych, ogrodowych i całorocznych, wykonanych z wysokiej jakości drewna sosnowego lub świerkowego, suszonego komorowo i czterostronnie struganego . W ofercie znajdują się domki o różnych rozmiarach i konfiguracjach, takich jak parterowe, z poddaszem czy antresolą, a także garaże drewniane i kioski handlowe . Klienci mogą wybierać spośród gotowych projektów lub zamówić domek dostosowany do indywidualnych potrzeb, z możliwością modyfikacji układu pomieszczeń, dodania tarasu czy innych udogodnień . Dzięki solidnej konstrukcji i estetycznemu wykonaniu, domki 123Domki.pl cieszą się popularnością zarówno w Polsce, jak i za granicą, stanowiąc idealne rozwiązanie dla osób poszukujących funkcjonalnego i przytulnego miejsca do wypoczynku .














Czy to jest mniejsza wersja domku letniskowego Tomasz-87? Jakie są wymiary? Czy można go zmodyfikować według własnego uznania?
Proszę o wycenę domku Tomasz-65 -30m bez dodatkowej narzędziowni oraz bez tarasu w wersji z ociepleniem wełną 10cm, w wersji z wełną 15cm oraz cenę domku bez ocieplenia.
Ponadto cena domku przy uwzględnieniu dodatkowych opcji:
okna plastikowe,
okiennice,
rynny,
blachodachówka,
drzwi wejściowe stalowe, a nie drewniane,
transport + montaż Tomaszow Mazowiecki
Pozdrawiam
Jurek
Witam Proszę o wycenę domku Tomasz–30m + tars bez dodatkowej narzędziowni w wersji z ociepleniem , oraz cenę domku bez ocieplenia. Proszę o uwzględnienie dodatkowych opcji:
blachodachówka, rynny, okna plastikowe, okiennice, transport + montaż Warszawa.
Proszę również o podanie czasu oczekiwania oraz czasu realizacji domku.
Dziękuję i pozdrawiam
Grażyna
Dzien dobry
Chcialabym poprosic o dokladne wyliczenie i informację jaki byłby koszt domku np Tomasz 65 Junior i druga wersja Tomasz 65 i w wersji 30 i 35 m kw Czyli interesuja mnie wyceny tych trzech wersji, bez narzedziowni, z okiennicami, gontem bitumicznym a nie papą oraz bez jak rowniez z zaimpregonowaniem, chyba ze Panstwo impregnuja juz w cenie Korzystalam z Panstwa uslug, jestem niezmiernie wdzieczna i zadowolona z domku,ktory juz zakupilam rom temu Solidna firma,szybka, sprawna, naprawdę same superlatywy
Bede wdzieczna za w miare szybki odpis Serdecznie pozdrawiam
Małgorzata
Ogrody Dzialkowe „Nowe”
Warszawa
Proszę o wycenę domku Tomasz-65 -25m + 7,5m2 taras bez dodatkowej narzędziowni
oraz o dodatkowe opcje:
pokrycie gontem
okiennice
transport + montaż
wersja z ociepleniem wełną 10cm (podłoga i dach) i bez ocieplenia
Proszę o wycenę domku Tomasz-65 -30m bez dodatkowej narzędziowni oraz bez tarasu w wersji z ociepleniem wełną 10cm, w wersji z wełną 15cm oraz cenę domku bez ocieplenia.
Ponadto cena domku przy uwzględnieniu dodatkowych opcji:
okna plastikowe,
okiennice,
rynny,
blachodachówka,
impregnacja,
drzwi wejściowe stalowe, a nie drewniane,
transport + montaż (Borkowo gm. Nasielsk).
Proszę również o podanie czasu oczekiwania oraz czasu realizacji domku.
dziękuję i pozdrawiam
Iwona
witam ile kosztuje taki domek 30m 2z uwzglednieniem narzedziowni ( montazu ,transportu rynien to co jest dodatkowo platne a powinno byc) transport do tarnowa opolskiego
Dzień dobry , jaki jest koszt domku Tomasz-65 , powierzchnia 30m kw. + taras w wersji letniskowej (nieocieplony) wraz z montażem? Jaki jest okres realizacji zamówienia ? Domek byłby montowany w Szczecinie.
Witam
Jaka cena ???Model: Tomasz-65 (Tomasz Junior)
Powierzchnia: 25m2 (30m2 i 35m2 lub większe) + taras
Witam. Jaki jest koszt tego domku z montażem, całkowitym ociepleniem, orynnowanie i blachodachówka.
Proszę o wycenę domku Tomasz-65 -30m z narzędziownią.
dodatkowe opcje:
okiennice,
transport + montaż
wersja z ociepleniem wełną 10cm i bez ocieplenia
dziękuję,
Radek
Witam serdecznie jaka jest cena domku Tomasz 65 bez narzędziowni z tarasem w wersji letniskowej wraz z montażem ?
Proszę o wycenę domku Tomasz-65 -30m bez dodatkowej narzędziowni
dodatkowe opcje:
okiennice,
transport + montaż
wersja z ociepleniem wełną 10cm i bez ocieplenia
dziękuję,
Sebastian
INTERESUJE MNIE CENA DOMKU TOMASZ 65 Z TARAZEM
Witam serdecznie, jestem poważnie zainteresowana projektem Tomasz 65, 30 m + taras, proszę o cenę i czas oczekiwania, proszę też o cenę w wersji ocieplonej.Z góry dzięki, pozdrawiam Kasia Nowak
Dzień dobry
Proszę o przesłanie rzutu domku z uwzględnieniem narzędziowni oraz obrysem i wymiarami wymaganej wylewki pod domek.
Proszę również o podanie ceny podstawowej domku z narzędziownią oraz dodatkowo płatnymi usługami (np. montaż, rynny, impregnacja itp – to co dodatkowo płatne a powinno być zrobione) oraz oczywiście czas realizacji i informację czy taki domek wymaga pozwolenia na budowę czy tylko zgłoszenia.
Byłby budowany na działce letniskowej w użytkowaniu wieczystym gruntu.
dziękuję i pozdrawiam
Aneta
jaki byłby koszt domkuTomasz65 o poeieszchni30m Kw + taras w wersji letniskowej+transport i montaż.
Ile kosztuje taki domek? 30 m2?
Dzień dobry , jaki jest koszt domku Tomasz-65 , powierzchnia 30m kw. + taras w wersji letniskowej (nieocieplony) wraz z montażem? Jaki jest okres realizacji zamówienia ?
Pozdrawiam L. Zielińska
witam jaki jest koszt tego domku bez pomieszczenia gospodarczego z montarzem ? i w wersji ocieplonej ? czy przy zamówieniu 5 szt. bylby rabat ? Interesuje mnie pokrycie blachodachówką. Pozdrawiam Dorota
Jaki jest koszt domku 30m + taras z montażem?
Dzień dobry
jaka jest cena domku z montażem i zielonym dachem?
Witam, prosze o podanie ceny domku Tomasz 25 m2, z osobnym pomieszczeniem gospodarczym, tarasem. Ocieplony, pokryty gontem, z okiennicami.
Witam czy można się dowiedzieć jaki jest koszt tego domku jak na zdjęciu i w opcji bez dobudówki jeśli takowa istnieje ?z góry dziękuję za odpowiedź
Witam, jaka jest cena domku z montażem w opcji 25 m kW z gontem i okiennicami. Z domkiem narzędziowym. Ilość sztuk wszystkiego- 2. Pozdrawiam, Beata Lubieniecka.
Witam jaki jest koszt domku z montażem, w wersji ocieplonej i bez budynku gospodarczego?
jaka jest cena tego domku?
Witam serdecznie, jaka jest cena domku wraz z montażem? Pozdrawiam
Proszę o podanie kosztu tego domku z wyszczególnieniem montażu.
jaka jest cena tego domku?
Proszę o przesłanie mi ceny postawienia tego domku – Tomasz -65,
czy taki domek można postawić na bloczkach betonowych. Proszę o koszt budowy w wersji standard.
Witam. Jaki jest koszt domku Paweł 64 z pełną górą i Tomasz 65?. Interesują mnie domki 25m2. Pozdrawiam. Dziękuje
Ile kosztuje model Tomasz-65(Tomasz Junior)
poprosze o cene domku na maila
Witam, interesuj a mnie dwa modele:piotr-64 (25m2) oraz tomasz-65(25m2), prosze o podanie ceny bez montażu oczywi scie obydwa modele w wersji standart, natomiast w modelu piotr-64 poddasze pełne.Dziekuje i prosze o szybką odpowiedz.
proszę o podanie kosztu domku
Witam, jak była by cena domku o wymiarach 6.20m x 5.20m z całkowicie zadaszonym tarasem o wymiarach 3.70m x 2.00m. Wewnątrz wydzielone duże pomieszczenie (tzw. pokój dzienny), sypialnia, bez łazienki, bez narzędziowni, dodatkowo okiennice. Dziękuję
Czy domek postawiony zostanie na podlozu betonowym czy jest inne rozwiazanie? jaka jest cena domku? dziekuje za odpowiedz.
jaka jest cena tego domku z montazem bez budynku gospodarczego?