Drewniany domek ogrodowy z komórką i tarasem Wrocław-43
18 400 zł
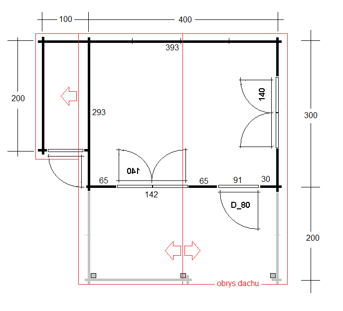
Drewniany domek ogrodowy Wrocław-43 z tarasem i komórką na narzędzia. Wymiar domku to 400x300cm 4x3m (dostępny także w innych wymiarach od 3×2 do 6×6), znajdujący się na froncie taras ma w tym przypadku 400x200cm. Dobudowana obok domku narzędziownia z osobnym wejściem z zewnątrz ma 200x100cm. Każdy z elementów domku można dowolnie modyfikować wg potrzeb Klienta. Podana cena dotyczy domku 400x300cm z tarasem 400x200cm i komórką 2m2 (200x100cm).
Opis
Domek ogrodowy drewniany 3×4
Marzysz o własnym miejscu, w którym będziesz mógł odpocząć? Spędzić czas z rodziną? Oddać się swojej pasji? Domek ogrodowy 3×4 to doskonałe rozwiązanie, które spełni Twoje oczekiwania. Niezależnie od tego, czy interesuje Cię domek drewniany 3×4, domek letniskowy 3×4 czy domek na działkę 3×4, w naszej ofercie z pewnością znajdziesz wymarzony projekt dla siebie. Oferujemy domki drewniane na sprzedaż o różnych metrażach i układach, co pozwala nam jeszcze lepiej odpowiadać na zróżnicowane potrzeby i oczekiwania. Nasze tanie domki ogrodowe posiadają tarasy lub balkony. Zapewniamy również możliwość wyposażenia domku w dodatkowe pomieszczenie gospodarcze
Domek 3×4: Jak wybrać projekt odpowiadający naszym potrzebom?
Wybór idealnego domku ogrodowego 3×4 może wydawać się skomplikowany, ale z odpowiednią wiedzą i kilkoma wskazówkami stanie się znacznie prostszy. W pierwszej kolejności zastanów się, czemu będzie służył domek drewniany 3×4:
- rekreacji?
- realizacji hobby?
- krótkim pobytom wypoczynkowym?
- przechowywaniu narzędzi?
Określenie przeznaczenia domku pomoże Ci wybrać odpowiedni projekt domku. Dotyczy to w szczególności układu przestrzeni i dodatkowych elementów wyposażenia, takich jak balkon, taras czy komórka na narzędzia. Warto pamiętać o tym, że domek ogrodowy drewniany 3×4 może się różnić pod względem układu i udogodnień od domku letniskowego, który zostanie zaprojektowany w taki sposób, aby oferować przestrzeń dla podstawowych aktywności na działce – przyrządzania posiłków, odpoczynku i dbania o higienę.
Wymarzony domek na działkę 3×4
Domek ogrodowy drewniany 3×4 to niezwykle uniwersalna konstrukcja, którą możemy adaptować zgodnie z własnymi potrzebami i oczekiwaniami. To sprawia, że domek o wymiarach 3x4m doskonale sprawdza się jako zabudowa działki ROD, jak i działki rekreacyjnej.
Inwestorów zainteresowanych wyborem domku ogrodowego drewnianego zachęcamy do szczegółowego zapoznania się z naszą ofertą, a w razie pytań lub wątpliwości do kontaktu.
1 opinia dla Drewniany domek ogrodowy z komórką i tarasem Wrocław-43
Wyczyść filtryMAECENAS IACULIS
Vestibulum curae torquent diam diam commodo parturient penatibus nunc dui adipiscing convallis bulum parturient suspendisse parturient a.Parturient in parturient scelerisque nibh lectus quam a natoque adipiscing a vestibulum hendrerit et pharetra fames nunc natoque dui.
ADIPISCING CONVALLIS BULUM
- Vestibulum penatibus nunc dui adipiscing convallis bulum parturient suspendisse.
- Abitur parturient praesent lectus quam a natoque adipiscing a vestibulum hendre.
- Diam parturient dictumst parturient scelerisque nibh lectus.
Scelerisque adipiscing bibendum sem vestibulum et in a a a purus lectus faucibus lobortis tincidunt purus lectus nisl class eros.Condimentum a et ullamcorper dictumst mus et tristique elementum nam inceptos hac parturient scelerisque vestibulum amet elit ut volutpat.
Drewniany domek ogrodowy – Twój prywatny kącik wśród zieleni
Nasz drewniany domek ogrodowy to idealne rozwiązanie dla osób pragnących stworzyć sobie prywatny kącik wśród zieleni. Oferujemy rozmaite modele, które oferują różne style i wykończenia. Dzięki solidnej konstrukcji oraz naturalnym materiałom, zapewniamy nie tylko funkcjonalność, ale także harmonię z otoczeniem.
Odkryj naszą kolekcję – drewniany domek ogrodowy idealny dla Ciebie
Każdy drewniany domek ogrodowy jest starannie wykonany z wysokiej jakości tworzywa, co gwarantuje trwałość i estetykę. Oferujemy różnorodne modele, które można dostosować do indywidualnych potrzeb i preferencji. Zainwestuj w nasz drewniany domek ogrodowy i ciesz się relaksem na świeżym powietrzu, mając pewność, że Twój prywatny kącik będzie idealnym miejscem do odpoczynku i kontaktu z naturą.
● Zobacz także | Garaże drewniane
123Domki i miejsce na urlop już masz!
Drewniany domek ogrodowy? Postaw na 123Domki! Zapraszamy do odkrycia naszej bogatej kolekcji i wyboru idealnego domku, który spełni wszystkie Twoje urlopowe oczekiwania!







irek –
same +++, żadnych —