
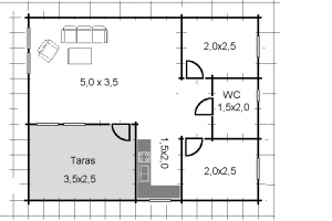
Model: Tomasz-87
Powierzchnia: 35m2 + taras 14m2
Seria: Wielkopolskie
Domek letniskowy o wymiarach 8x7m wykonany z SUSZONEGO komorowo, struganego balika sosnowego, łączonego na podwójne pióro – wpust.
Powierzchnia użytkowa ok.35m2. Wysokie, jasne pomieszczenia. Niewątpliwą zaletą domku jest duży, całkowicie zadaszony taras o powierzchni ok. 14m2.
W cenie domku zawarty także montaż. Możliwość pokrycia gontem bitumicznym (dowolny kolor i kształt) za dopłatą
Dom znajduje się w pobliżu Tomaszowa Mazowieckiego, istnieje możliwość obejrzenia. Prosimy o wcześniejszy kontakt telefoniczny.
Inne rozmiary domków oraz indywidualne wymagania: do uzgodnienia!
– poddasze lub antresola
– grubość balika
– rozmieszczenie i wymiary pomieszczeń, drzwi i okien
CENA ZAWIERA:
• Konstrukcja domu z montażem
• Konstrukcja podłogi zabezpieczona impregnatem
• Duże, pełnowymiarowe i oszklone drzwi: 160cm x 200cm (podwójne wejściowe) i 80cm x 200cm (wewnętrzne) z zamkiem i kompletem kluczy
• Oszklone, otwierane okna (podwójna szyba za dopłatą)
• PODŁOGA (28mm) i dach (21mm) drewniane, (NIE płyta OSB!): pióro – wpust, strugany czterostronnie
OPCJE:
• Impregnat koloryzujący wg. życzenia klienta
• Pokrycie domu impregnatem po montażu
• Ocieplenie ścian, podłogi i dachu wełną mineralną
• Dodatkowe drzwi i okna
Inne opcje rozkładu pomieszczeń (np. z 2-ma sypialniami)

123Domki.pl to polski producent domków drewnianych, oferujący szeroki wybór modeli letniskowych, ogrodowych i całorocznych, wykonanych z wysokiej jakości drewna sosnowego lub świerkowego, suszonego komorowo i czterostronnie struganego . W ofercie znajdują się domki o różnych rozmiarach i konfiguracjach, takich jak parterowe, z poddaszem czy antresolą, a także garaże drewniane i kioski handlowe . Klienci mogą wybierać spośród gotowych projektów lub zamówić domek dostosowany do indywidualnych potrzeb, z możliwością modyfikacji układu pomieszczeń, dodania tarasu czy innych udogodnień . Dzięki solidnej konstrukcji i estetycznemu wykonaniu, domki 123Domki.pl cieszą się popularnością zarówno w Polsce, jak i za granicą, stanowiąc idealne rozwiązanie dla osób poszukujących funkcjonalnego i przytulnego miejsca do wypoczynku .























Czy ten domek letniskowy może zostać dostarczony w dowolne miejsce w Polsce? Jaki jest termin realizacji? Jaka cena w wersji ocieplonej drewnianego domku letniskowego
Dzień dobry proszę o wycenę domku Tomasz 87 w wersji z tarasem 5/3 wraz z montażem woj wielkopolskie koło Lichenia pozdrawiam.
Proszę o wycenę tego.modelu domku. Tomasz 77 z tarasem. Rydzyny koło Pabianic.
Witam, poproszę o wycenę wersji z jedną sypialnia. Montaż Rydzyny koło Pabianic.
Witam. Proszę o wycenę domku Tomasz-87. Łask koło Łodzi.
Witam,proszę o wycenę domku Tomasz 87 z dwoma pokojami do 25m2 z dowozem woj.opole
Witam,
Proszę o wycenę domku Tomasz 87,grubosc balika 45mm,ocieplenie ścian z pomalowaniem impregnatem po montażu, projekt z 1 sypialnia. Dowóz Tomaszów Mazowiecki. Pozdrawiam Piotr.
Witam,
Proszę o wycenę wstępną domku Tomasz 87 z montażem i transportem (okolice Białegostoku)
Dzień dobry . Interesuje mnie cena domku pierwsza wersja z dwiema sypialniami oraz pokrycie dachu transport Magnuszew woj. mazowiecki.
Dzień dobry,
proszę o wycene domku TOMASZ 87 z tarasem i pomieszczeniem gospodarczym
Dziękuje
Witam proszę o wycenę domku Tomasz 87 z projektu nr 2 wraz z dojazdem i montażem w Warszawie.
Witam proszę o wycenę domku Tomasz 87 z projektu nr 2 z dowozem i montażem w Warszawie.
Witam.
Proszę o wycenę domku Tomasz, wersja z dwiema sypialniami i WC do samodzielnego montażu.
Witam,
proszę o przybliżony koszt domku Tomasz -87
– grubość balika 36 mm
– rozkład pomieszczeń : salon-kuchnia , łazienka pokój
– pokrycie dachu gontem
– transport z montażem miejscowość Wrząca gm. Lutomiersk (łódzkie)
– jaki wynosi czas realizacji kompletnego zamówienia z montażem.
Pozdrawiam
Witam, interesuje mnie domek Tomasz87 – pom.1 + pom.2+ wc + aneks zamiast tarasu z dowozem i montażem. Okolice Malerzowic Wielkich ( opolszczyzna)
Pozdrawiam i dziękuję.
Witam
Proszę wycenę i termin realizacji domku letniskowego 35m2 plus taras 14m2. pomieszczenie+kuchnia, wc, sypialnia, taras
– transport Bystrzyca, gmina Wleń (dolnośląskie)
z wszystkimi opcjami włącznie
jaki termin realizacji
Witam, proszę o wycenę domku Tomasz z salonem plus dwie sypialnie i wc. Wycena z montażem i dowozem
Dzień dobry. Proszę o wycenę domku Tomasz.
Model z dwiema sypialniami z montażem i dowozem do Łodzi.
Interesuje mnie cena podstawowa oraz ceny dodatkowych opcji.
Dzień dobry
Interesuje mnie wycena domku letniskowego Tomasz 87 35m2 + taras 14m2 pod klucz.
Ile pomieszczeń mieści się w domku i jakie to są pomieszczenia? Miejscowość do której miałby trafić to Tuszyn pod Łodzią. Dziękuję i pozdrawiam.
Proszę o wycenę tego domku z projektu nr 2 – pom 1 + pom 2 + wc. z dowozem i montażem w Warszawie
Proszę o wstępną wycenę domku z opcją złożenia przez Państwa i zaimpregnowaniem po złożeniu.
witam, proszę o wycenę domku Tomasz z dwoma pomieszczeniami oraz łazienką z montażem okolice Zgierza
Dzień dobry. Proszę o wycenę domku Tomasz 87 Seria: wielkopolskie.
Model z dwiema sypialniami z montażem i dowozem w okolice Kielc.
Interesuje mnie cena podstawowa oraz ceny dodatkowych opcji.
Jaki jest termin oczekiwania na domek?
Witam,
Proszę wycenę domku letniskowego 35m2 plus taras 14m2
Interesuje mnie również cena dodatkowych opcji jak: montaż, ocieplenie, okiennice, pokrycie dachu gontem. Na parterze wydzielone pomieszczenie na łazienkę oraz 2 sypialni3.
Transport w okolice Warszawy.
witam.
proszę o wycenę domku Tomasz 87 – 35 m plus taras . (2 pomieszczenia , wc i taras).
w cenę proszę wliczyć:
1.transport do Gabrielów k/ Koniecpola świętokrzyskie
2.okiennice
3.dach gont (z tym że kont nachylenia dach musi być w przedziale 35-45 stopni i dach musi być dwuspadowy symetryczny)
Witam jaka jest cena domku Tlmasz87 z 2 sypialniami kolo Pułtuska i transport. Proszę o odpowiedź
Dzień dobry,
posiadam działkę rolną (znajdującą się w mieście) o powierzchni 3000m2.
Czy na działce o takiej powierzchni mogę wybudować 6 domków rekreacyjnych (czyli 1 na każde 500m2) ?
Dziękuję za odpowiedź,
Wojtek.
Dzień dobry, poproszę o wycenę domku Tomasz z jedną sypialnią, dużym tarasem, transportem do Zgierza oraz montażem. Z opcja orynnowania, ocieplenia ścian, podłogi i dachu wełną mineralną
Dzień dobry
Proszę wycenę i termin realizacji domku letniskowego 35m2 plus taras 14m2
– transport Rekowo gm. Polanów
– dach gont
–ocieplenie podłogi, podwójne szyby
Tomasz 87 – poprosze o cenę i dostępne terminy najbliższe.
Witam prosze o wycenne I termin realizaci domku 30 m 2 sypialnia salon wc I taras dach gont okiennice zabezpieczenia drewna olejowanie transport I montaz. Radom wojewodztwo mazowieckie
Jaka cena domku z jedną sypialnią?
Dzień dobry, poproszę o wycenę domku Tomasz z jedną sypialnią, dużym tarasem, transportem w okolice Nadarzyna oraz montażem.
Dzień dobry
Proszę o propozycję i wycenę i termin realizacji domku letniskowego do 35m2 /bez pozwolenia/
– powierzchnia podłogi drewnianej 6mx6m usadowionej na słupach betonowych
– transport + montaż Linowo/k Szczytna
– dach gont
– podłoga – deska
– okiennice
– zabezpieczenie drewna – olejowanie
– dwa pomieszczenia + wc + taras
– orynnowanie
– drzwi zewn. szt.2 /do jednego pom. oddzielne drzwi pojedyncze /
inne propozycje :
Model: Tomasz-87
Powierzchnia: 35m2 + taras 14m2
Seria:Wielkopolskie
Witam proszę o cenę z montażem,okolice Łodzi.
Z montażem w Poznaniu
Witam. ProsZę o Wycenę domku Tomasz 87 z dwiema sypialniami z gontem na dachu i impregnatem.
Interesuje mnie domek Tomasz-87 pierwsza wersja domku z 2 sypialniami i dodatkowymi opcjami: Ocieplenie ścian, podłogi i dachu wełną mineralną oraz okiennice.prosze o wycene
Witam proszę o podanie ceny domku Tomasz 87 projekt z dwoma sypialniami bez ocieplenia.
Witam.
Jaki byłby koszt takiego domku Tomasz 87 35m2 z dwoma dużymi sypialniami i zabudowanym tarasem. W miejscu tarasu łazienka i część powiększonego salonu. Oraz cena transportu.
Pozdrawiam.
Jaka cena za domek z montażem lub bez do bytowa.
2pokoje kuchnia łazienka taras
Dzień dobry. Proszę o cenę domku i najbliższy możliwy termin realizacji
Proszę o cenę domku Tomasz – 87 w wersji: a) z 2-ma sypialniami , b) z dwoma sypialniami i antresolą.
Pokrycie dachu blacho dachówką. Proszę o podanie kosztów dostawy oraz opcję z / i bez montażu w okolice Suwałk.
Dzień dobry
pytanie który z domków kosztuje do 25000zł.
Witam,
jaki byłby koszt Tomasz-87 o powierzchni: 35m2 + taras 14m2 bez montażu i bez ocieplenia.
Pozdrawiam
Proszę o podanie ceny domku Tomasz 87 (35m2 i taras 14m2) z montażem, ociepleniem, blachodachówką i impregnatem. Montaż w Mszczonowie – mazowieckie.
Monika
Proszę o podanie ceny domku Tomasz 87 (35m2 i taras 14m2) z montażem, ociepleniem, blachodachówką( i wresja z gontem) i impregnatem. Montaż w Mszczonowie – mazowieckie.
Monika
Wczesniejsze pytanie dotyczy domku Tomasz 87
Witam, jaki jest koszt domku z ociepleniem i antresolą? Na dole jedna sypialnia.
Witam, Jaka cena domku z 2 sypialniami (wersja środkowa z oferty) domek z ociepleniem?
Dzień dobry, jaka jest cena domku Tomasz 87 z transportem bez montażu w Bory Tucholskie, powiat starogardzki ?
Realizacja 04.2018 roku.
Z góry dziękuje za odpowiedz
Witam,
jaki jest koszt dostawy domku Tomasz-87 – WERSJE Z DWOMA SYPIALNIAMI?
Wersja z ociepleniem jak i bez. Z montażem jak i bez.
Woj. śląskie.
Pozdrawiam
Witam
Proszę o podanie ceny Tomasz -87 z montażem, z wersją z ocieplenie i bez. Miejscowość Kamieńczyk koło Wyszkowa.
Pozdrawiam
Jaka byłaby cena w wersji z dwoma sypialniami . Transport i montaż Orzysz
I czy taki metraż nie wymaga pozwolenia prawa budowy
Proszę o cenę domku z dwoma sypialniam. Transport i montaż w miejscowości Darłówko.
witam interesuje mnie cena domku Tomasz 87 35 m2 + taras 14 m2 + antresola wraz z montażem i ociepleniem
Witam, ile kosztuje taki domek, 2 sypialnie, wc i taras.
Proszę o podanie ceny domku Tomasz 87 (35m2 i taras 14m2) z montażem, ociepleniem, blachodachówką i impregnatem. Montaż w Trzebini małopolska.
Pozdrawiam
Proszę o cenę domu Tomasz 87 z 2 sypialniami pokryty blachodachówką montaż 10.2017 okolice Sulejowa
Proszę o podanie ceny domku Tomasz 87 (35m2 i taras 14m2) z montażem, ociepleniem, blachodachówką i impregnatem.
Jaka byłaby cena domku Tomasz 87 (35m2 i taras 14m2) z 2 sypialniami, z montażem, ociepleniem, blacho-dachówką , impregnatem i dostawa do Leżajska?
Witam, w jakiej cenie jest ten domek + cena transportu i dodatkowych opcji.
Witam interesuje mnie domek Tomasz z dwoma sypialniami wersja całoroczna.proszę o podanie osobno koszt materiałów, robocizny i transportu.działka ok 70km na Zach.od Poznania. Bardzo zależy mi na solidnym ociepleniu (chodzi o zimowe urlopy?).pozdrawiam Wojciech
Proszę o podanie ceny domku Tomasz 87 (35m2 i taras 14m2) z montażem, ociepleniem, blachodachówką i impregnatem.
Witam,
Interesuje mnie cena domku Tomasz-87 z 2-ma sypialniami (opcjonalnie transport w okolice m. Grunwald).
Pozdrawiam,
Tomasz
Witam, jaka byłaby cena domku w wersji z dwoma sypialniami.Transport i montaż Bory Tucholskie.Prośba o informację zwrotną.
Witam,
prośba o informację o cenie :
kosztów domku z podziałem na materiały ( impregnacja , ocieplenie ) ,
montaż
transport.( Warszawa)
Dziękuję.
z 2 sypialniami
proszę o wycenę domku Tomasz-87 35 m2+ taras 14 m2
cena bez montażu i z montażem dostawa Jarosław ,podkarpackie bez rynien i gontu.
Dzień Dobry, interesuje mnie cena domku Tomasz 87 wraz z dodatkowa opcja impregnacji oraz ocieplania dachu, ścian i podłogi, w ofercie proszę rownież uwzględnić transport oraz przewidywany czas realizacji. Montaż na działce w okolicach Tuszyna.
Pozdrawiam
Witam czy moge uzyskac wiecej informacji odnosnie domku Tomasz 87 z 2 sypialniami (cena i czy jest mozliowosc ocieplenia domku itp)
Pozdrawiam Joanna
Witam czy moge uzyskac wiecej informacji odnosnie domku Tomasz 87 z 2 sypialniami (cena, czy jest mozliowosc ocieplenia domku itp) dziekuje
Pozdrawiam Joanna
Witam. Jaka jest cena za domek z Transportem do Świnoujścia i montażem.PZDR
Witam
Interesuje mnie cena domku Tomasz 87 z 2 ma sypialniami
Dziękuję za szybką odpowiedz
Beata
Witam. Proszę o podanie ceny całkowitego montażu domku Tomasz 87. Mieszkam na mazurach i kiedy państwo mają czas na montaż
Witam,
Jaka jest cena domku (wraz z montażem) Tomasz 87 w wersji z dwiema sypialniami?
Ile czasu trwa postawienie takiego domku?
Pozdrawiam
witam, proszę o podanie ceny za wersje podstawową .
Proszę o podanie ceny z montażem na domek Tomasz 87 w okolicach Legnicy. Jaki jest termin realizacji ?
Proszę o oferte cenową z transportem i montażem . Transport do Przasnysza.
Witam
Interesuje mnie domek Tomasz 87 z dwoma sypialniami, ocieplona podloga sciany i dach, w wersji calorocznej.
Czy jest to mozliwe i jaka jest cena z montażem i oknami w wersji zimowej
Pozdrawiam
Dzień Dobry,
Proszę o przesłanie kosztów domku z podziałem na materiały, montaż i transport.
Dziękuję.
Dzień dobry,
Ja też chciałbym zapytać o cenę domu Tomasz. W specyfikacji podano, że można budować domy o kącie nachylenia dachu od 30 – 45 stopni – plus, minus 5 stop. W związku z tym pragnę zapytać czy istnieje możliwość zmiany kąta nachylenia dachu w Państwa projekcie.
Dziękuję
nteresuje mnie calkowity koszt razem z montazem domku 2 pokojowego tomasz87 dzialka znajduje sie kolo poznania jaki termin realizacji
Witam. Poproszę o cene. Pozdrawiam
Witam czy moge uzyskac wiecej informacji odnosnie domku Tomasz 87 z 2 sypialniami (cena, czy jest mozliowosc ocieplenia domku itp) dziekuje i pozdrawiam Iza
Witam interesuje mnie cena domku Tomasz-87. Bardzo prosze o szybka odp[owiedz
Witam, jaka jest cena tego domku z andresola? Czy domek mozna ocieplic i jaka ewentalnie byłaby cena. Pozdrawiam
Poproszę o podanie ceny domku w opcji z wydzielonymi dwoma sypialniami (2x5m2) i wc i duzym tarasem. Z góry serdecznie dziękuję i pozdrawiam Ewa
Dzień dobry, interesuje mnie cena domku TOMASZ87 z tarasem z montażem, oknami
Witam,
interesuję mnie cena domku Tomasz-87 z dwoma sypialniami.
Witam. Proszę o podanie ceny domku Tomasz 87 z dwiema sypialniami.
Jaka jest cena domku Tomasz-87 wraz z montażem?
Witam,
szukam domku parterowego z dwiema sypialniami zainteresował mnie Tomasz 87 proszę o podanie ceny w raz z montazem oraz pełną specyfikację możliwych dodatkowych opcji do wyboru.
pozdrawiam
Justyna Zdanowska
Witam
Interesuje mnie cena domku Tomasz-87 bez montazu z grubszymi scianami
Jaka cena powyzszego domku letniskowego jednopietrowego?
dziękuję
Jestem zainteresowana domkiem Tomasz-87 w wersji z dwiema sypialniami, będę wdzięczna za podanie ceny i terminu realizacji.
Pozdrawiam
Witam serdecznie.
Interesuje mnie cena domku Tomasz87 w kazdej opcji czyli z montazem i mozliwoscia ocieplenia oraz bez. Interesuje mnie tez cena o grubosci 36 mm i 45 ,oraz interesuje mnie cena domku Mazowiecki65 z montazem i mozliwoscia ocieplenia oraz bez. Interesuje mnie tez cena o grubosci 36 mm i 45
Z gory dziekuje i pozdrawiam
Proszę o informację jaka jest cena domku z dwoma sypialniami
Witam.Proszę o cenę domku Tomasz 87.Dziękuję.
Witam.Jaka cena domku Tomasz 87 z montażem+dowóz w okolice Krakowa??
Jestem zainteresowana modelem TOMASZ 87. Chciałabym go obejrzeć. Czy jest to możliwe na przykład w sobotę 28 mają? Pozdrawiam.
Witam serdecznie.
Interesuje mnie cena domku Tomasz87. Wersja z większym tarasem i łazienką oraz grubością 36 mm. W dwóch opcjach z montażem i bez. Dowóz w okolice Serocka.
Z góry dziękuje i pozdrawiam
Jesteśmy zainteresowani projektem,
Jaka jest obowiązująca cena z montażem, bez montażu , cena transportu
Witam,
Interesuje mnie cena ww domku Tomasz-87 w kilku wersjach:
1. full opcja tzn z montażem, ociepleniem, i kominkiem 🙂 z 2 sypialniami
2. opcja bez ocieplenia z 2 sypialniami,
3. full opcja z ew poddaszem
pozdrawiam
Dorota Laskowska
Proszę o wycenę domku Tomasz87 przystosowanego do wymogów ROD (powierzchnia zabudowy do 35m2 plus zadaszony taras do 12m, wraz z rysunkiem poglądowym. Zależy mi na możliwie dużym tarasie (blisko maksymalnych 12m2) Interesuje mnie tez cena dla grubości 36 mm i 45, oraz z ociepleniem i bez.
Proszę o uwzględnienie dwóch pomieszczeń (mniejsze około 2mx3m), oraz dodatkowych dużych drzwi(prowadzących do większego z pomieszczeń) na ścianie przeciwległej do tarasu.
Witam serdecznie.
Interesuje mnie cena domku Tomasz87 w opcji z montazem z mozliwoscia ocieplenia . Interesuje mnie tez cena o grubosci 36 mm i 45.
Z gory dziekuje i pozdrawiam
Witam interesuje mnie koszt domku model Tomasz -87 z ociepleniem i bez ocieplenia wraz z montażem oraz transportem
pozdrawiam Barbara M.
Witam proszę o podanie mi ceny bez montażu sam materiał -34-bez okien i dachówki -pozdrawiam
Witam. Chciałabym się dowiedzieć o cenę domku Tomasz 87 z dwoma sypialniami. Pozdrawiam.
Witam!
Interesuje mnie cena domku Tomasz 87 w wersji podstawowej i ocieplonej oraz cena transportu na odległość ok. 300 km
Pozdrawiam
Dzień dobry,
Interesuje mnie cena domu Tomasz87 w każdej opcji, czyli z montażem i bez, a także z możliwością ocieplenia i bez. Interesuje mnie też cena o grubości 36 mm i 45. Czy na terenie innych województw oferta sprzedaży z montażem i dowozem również obowiązuje?
Pozdrawiam!
Model: Tomasz-87
Powierzchnia: 35m2 + taras 14m2
Seria:Wielkopolskie
Witam jaka cena tego domku z montażem?
Witam serdecznie.
Interesuje mnie cena domku Tomasz87 w kazdej opcji czyli z montazem i bez oraz z mozliwoscia ocieplenia oraz bez. Interesuje mnie tez cena o grubosci 36 mm i 45.
Z gory dziekuje i pozdrawiam
Witam
interesuje mnie model Tomasz 87
Jaka jest cena tego domku wraz z postawieniem
Witam. Proszę o podanie ceny domku Tomasz 87 z dwiema sypialniami.
witam serdecznie,
Jaki jest koszt budowy domku Tomasz 87?
Interesuje mnie domek Tomasz 87. 35 m2 + taras 14. m2. Poproszę również o kosztorys z dwoma sypialniami.
Chciałabym się dowiedzieć o cenę domku Tomasz 87 z dwoma sypialniami. Pozdrawiam.
witam jaki jest koszt domku tomasz87 z gory dziekuje za odpowiedz
Jaki jest koszt takiego domku wraz z montażem? Dowóz w okolice Serocka.
Bardzo podoba mi się ten domek. Prosze podać jego cenę.
Witam interesuje mnie koszt całkowity domku Tomasz 87 z opcją ocieplenia i bez. Dom miałby stanąć w okolicy Piecek warminsko-mazurskie.
Pozdrawiam
Witam, jaki jest koszt za domek wraz z montażem Model: Tomasz-87 Powierzchnia: 35m2 + taras 14m2 + dowóz Biala Podlaska województwo lubelskie jaki jest termin realizacji.
Witam, jaki jest koszt za domek wraz z montażem Model: Tomasz-87 Powierzchnia: 35m2 + taras 14m2 + dowóz okolice Częstochowy jaki jest termin realizacji.
Jaki jest koszt budowy domku Tomasz 87?
Witam, jaki jest koszt wybudowania takiego domku letniskowego tomasz 87 interesuje mnie ten model lecz zmniejszony do około 25m2. Proszę o napisanie ceny z góry dziękuje.
Witam,
Interesuje mnie domek drewniany o powierzchni użytkowej ok 30 m2 – 35m2. Zainteresował mnie domek TOMASZ 87 z dwoma sypialniami.
Proszę o podanie ceny gotowego domku.
Pozdrawiam,
Witam,
Szukam domku domku drewnianego o powierzchni użytkowej ok 30 m2 – 35m2. Zainteresował mnie Państwa domek TOMASZ 87 z dwoma sypialniami.
Proszę o podanie ceny ww. domku.
Pozdrawiam,
Witam,
Interesuje mnie Model: Tomasz-87
Powierzchnia: 35m2 + taras 14m2
Jaka jest cena tego owego domku ?
Witam,
jaki jest koszt za domek wraz z montażem
Model: Tomasz-87. Proszę o informacje o koszcie domku z jedną i dwoma sypialniami.
Powierzchnia: 35m2 + taras 14m2
okolice Gdańska
pozdrawiam serdecznie
Witam,
interesuje mnie domek Tomasz-87 z dwoma pomieszczeniami, wc i tarasem 14m2, jestem z Gdańska, proszę o wycenę domku.
Pozdrawiam
Katarzyna
Proszę o podanie ceny i termin realizacji Jestem powaznie zainteresowany domkiem o pow do 40m2
Witam,
bardzo prosze o podanie ceny domku Tomasz 87 – 35m2 i taras 14m2.
Odleglosc od Tomaszowa Maz. 30 km.
Jakie sa terminy realizacji?
Pozdrawiam serdecznie
Witam,
Interesuje mnie Model: Tomasz-87
Powierzchnia: 35m2 + taras 14m2
Jaka jest cena tego owego domku ?
lokalizacja – Warszawa
Pozdrawiam
Agnieszka
Witam
Interesuje mnie orientacyjny koszt Tomasz87 z 2 sypialniami z montażem i transportem okolice Skierniewicach.
Z gore Dziekuje
dzień dobry jestem zainteresowany modelem tomasz 87 proszę o podanie ceny. i czy można zrobić ten sam projekt tylko o wymiarach 7 na 5 .
letniskowego Tomasz-87 proszę podać cenę w wersji dwa dodatkowe pomieszczenia i malutki aneks i wc
witam prosze o wycene domku w wersji optymalnej z 2 małymi sypialniami
dziekuje
Witam! jestem zainteresowany powyższym domkiem. Proszę o ogólna wycenę – miejsce budowy – okolice Olsztyna.
pow 35m+14 projekt tomasz 87,dostawa Warszawa PROSZĘ O KONTAKT
Witam, proszę o podanie ceny domku model: Tomasz-87, w wariacie z jedną oraz dwoma sypialniami.
Witam!
Interesuje mnie cena tego domku.
Pozdrawiam!
Witam
Prosze o informacje nt. ceny domku Tomasz 87 z dowozem ok.50 km w jedna strone i ew. montazem.
Witam,
Interesuje mnie Model: Tomasz-87
Powierzchnia: 35m2 + taras 14m2
Jaka jest cena tego owego domku ?
Pozdrawiam
Maciej
Jestem zainteresowana tym proiektem, jaka jest jego cena?
Witam interesuje mnie projekt domku 8na7m parter. Moje pytanie to czy jest mozliwosc adaptacji tarasu na pomirszczenie gosp. Projekt jego cena? Wysokosc domku sciany i w szczycie. Poprosze o wycene. Przykrycie domku blacha? I jeszcze wymoary okien?Bardzo dziekuje
Witam,
Szukam domku domku drewnianego o powierzchni użytkowej ok 30 m2. Zainteresował mnie Państwa domek TOMASZ 87 z dwoma sypialniami.
Proszę o podanie ceny ww. domku.
Pozdrawiam,
Dziendobry.Proszę o podanie ceny za domek Tomasz-87,okolice Szczecina.I czy mogę go postawić bez zezwolenia,na swojej ziemi.Z poważaniem zainteresowana.
Witam
Interesuje mnie orientacyjny koszt Tomasz87 z 2 sypialniami z montażem i transportem okolice Wrocławia.
Witam,
jaki jest koszt za domek wraz z montażem
Model: Tomasz-87
Powierzchnia: 35m2 + taras 14m2
okolice Aleksandrowa Łódzkiego.
pozdrawiam serdecznie
Proszę o podanie przybliżonej kwoty budowy domku Tomasz-87
dziekuje i pozdrawiam
Jaki koszt takiego domku
dzień dobry. Prosze o podanie kosztu domku tomasz 87. Wersja podstawowa. Montaż okolice Rypina (kujawsko-pomorskie). Pozdrawiam
Sławek
Guten Tag senden Sie mir bitte Katalog mit Preisliste da ich Interesse hab ich Produkt zu vertreiben, immer mit selbst Abholung und wird auch in Baar bezahlt.meine Anschrift: haubergstr15. 57555- Brachbach D. Mit freundlichen Grüßen Krzysztof-Marek Kozak
Witam. odnośnie domku Tomasz 87. proszę o kompletną cenę z transportem i montażem. Czy potrzebne jest pozwolenie czy tylko zgłoszenie jako np. budynek gospodarczy. Władysławowo. Dziękuję za odpowiedz. Krzysztof.
Witam mam pytanie o Model: Tomasz-87
Powierzchnia: 35m2 + taras 14m2 jaka jest łączna cena z ocipleniem scian dachu i podłogi welna 10 cm.
Witam, poszukuję domku letniskowego z możliwością wykorzystania w zimie (w weekend – możliwość docieplenia) obejmującego sypialnię dla max 2 osób, małą kuchenkę i ubikację oraz niewielkim, zadaszony taras. Pow. max 25m2, który dałoby się posadowić na podkładach kolejowych impregnowanych. Dach z gontu, blachy lub papy, max, ograniczona ilość okien (max. 2) i ich powierzchnia, pełne, nie przeszklone drzwi wejściowe z zamkiem patentowym. Ściany nie szkieletowe, drewniane o gr. min. 45mm, impregnowane. Jeśli to możliwe z możliwością ustawienia kominka do ogrzewania. Proszę o wycenę wg pozycji ww i podanie terminu realizacji. Pozdrawiam
Proszę o podanie ceny z montażem domku Model: Tomasz 87 na terenie śląska (Jaworzno)
Witam Serdecznie
Poprosze o wyslanie cennika dla domku Tomasz 87 z tarasem 14m2 jak na zdjeciach.
Pozdrawiam
Sally
Bitte um Zusendung eines unverbindlichen Angebotes inkl. Montage in A-3680 Persenbeug. Weiters bitte ich um postalische Zusendung eines Kataloges auf Deutsch inkl. Preisliste auf folgende Adresse: Michael Bacher, Jägerstraße 8, 3680 Persenbeug. Vielen Dank!
WITAM!!!
JESTEM ZAINTERESOWANY ZAKUPEM U PAŃSTWA REGO DOMKU WRAZ Z DOWOZEM I MONTAŻEM.MAM CIEKAWĄ PROPOZYCJĘ W ROZLICZENIU:NOWĄ NIEUŻYWANĄ PROFESJONALNĄ ukośnicę milwaukee piła MS 305 DB z posuwem i podstawą oraz również nową nieużywaną: MAKITA MLT100 STOŁOWA PILARKA TARCZOWA PIŁA +STÓŁ.DO JEDNEGO I DRUGIEGO MAM NOWE ZAPASOWE TARCZE.
JEŚLI JESTEŚCIE PAŃSTWO TĄ OFERTĄ ZAINTERESOWANI BARDZO PROSZĘ O INFO NA I-MEILA LUB KONTAKT TELEFONICZNY:
MOJE NAMIARY:
ANDRZEJ Z BIAŁEGOSTOKU
jaka jest cena domku Model: Tomasz-87
Witam
Interesuje mnie cena domku Tomasz-87.Prosze o odpowiedz.
Z gory dziekuje
Witam,
Jestem zainteresowana domkiem Tomasz 87 -z 1 sypialnią (35m2 + taras 14m2)
Miejscowość: 63-940 Bojanowo.
Proszę o podanie ceny.
Witam,
Jestem zainteresowana domkiem model: Tomasz-87
Powierzchnia: 35m2 + taras 14m2.
Proszę o podanie ceny.
Witam serdecznie,
proszę o informację, czy w domku Tomasz 87 można zamontować kominek?
Jaka jest cena tego domku z dwiema sypialniami – wersja podstawowa – bez dodatkowych opcji.
Lokalizacja: kujawsko-pomorskie
Pozdrawiam
Monika
Witam,
chcialabym dowiedziec sie o cene domku letniskowego
Tomasz 87 wersja z dwiema sypialniami pomiedzy wc powiekszony taras brak przedsionka drzwi wejscie od tarasu ostatni wersja rzut
Termin oczekiwania inne koszty – czy na ten domek musze miec zgode jesli na dzialce stoi cos co bedzie rozbierane
Pozdrawiam
Agnieszka Lipinska
no ale nie widze ceny tych domkow np. model TOMASZ 87 -35 m2
Dzień dobry.
Proszę o przesłanie ceny domku Tomasz-87 w wersji standardowej i rozszerzonej.
Dziękuję i pozdrawiam
Agnieszka T.
Witam, jestem zainteresowany domkiem
Model: Tomasz-87
Powierzchnia: 35m2 + taras 14m2
Jaka byłaby cena tego domku wersji całorocznej (ocieplonej),z kominkiem, hydrauliką,elektryką.
Pozdrawiam – P.Malinowski
Wita. Jaki jest koszt przedstawionego domku Tomasz87
Witam
Bardzo proszę o podanie ceny Model: Tomasz-87
Powierzchnia: 35m2 + taras 14m2.Jestem zainteresowana budową domku w Pruszkowie
prosze o podanie ceny domku tomasz 87
Jaka jest cena domku model Tomasz 87?
Jaki jest koszt zakupu domku z jego montażem w wariancie „8x7_cz-wa WIEKSZY TARAS” z dociepleniem podłóg, ścian i dachu ? – okolice Drawska Pomorskiego.
Uprzejmie prosze o cene domku letniego – dzialkowego o pow. do 35m2 z tarasem 12m2 i jedna scianka dzialowa. Parterowego z ocieplona podloga, scianami i dachem. 3 okna, 1drzwi wejsciowe oraz 2je drzwi wewnetrznych.
Z zyczeniami milego dnia
Slawomr Rutkowski
Witam,jestem zainteresowany zakupem domku TOMASZ-87 z montażem ,bardzo proszę o podanie ceny.Lokalizacja ewentualna to Płock.
Witam, proszę o podanie ceny domku wraz z montażem (35m2 + 12m2 taras)
Proszę o wycenę domku wersja z Ocieplenie podłogi i dachu wełną mineralną, oraz antresola z jedną sypialnią. Miejsce budowy okolice Wrześni. Proszę też o cenę najtańszej wersji tego domku
pozdrawiam
Witam.
Przeglądałam różne strony internetowe w poszukiwaniu producentów / sprzedawców domków i znalazłam Pana ogłoszenie.
Zauważyłam, że oferuje Pan domki w różnych rozmiarach.
Chciałabym się zapytać czy mógłby Pan przedstawić ofertę swoich domków w rozmiarach do 25 m2 oraz między 40 a 60 m2.
Precyzując moje zapytanie- interesuje mnie oferta na 20 szt. domków do powierzchni 25 m2, w miarę z jak najlepszym rozplanowaniem (aneks kuchenny, łazienka, sypialnia i pokój dzienny) oraz 5 szt. domków o powierzchni do 60 m2 a może nawet i większej (zależy od ceny) tak, żeby można było rozmieścić pokój dzienny, aneks kuchenny, łazienkę z możliwością wstawienia pralki, dwie oddzielne sypialnie. Oczywiście jeżeli taki układ udałoby się rozplanować na mniejszym metrażu to jesteśmy również zainteresowani.
Domki do 25 m2 będą przeznaczone do użytkowania tylko i wyłącznie w okresie letnim na kilkudniowe pobyty, większe domki – do 60 m2 będą również użytkowane tylko w okresie letnim ale do dłuższych pobytów 1/2 miesięcznych, więc muszą spełniać wymogi do swobodnego użytkowania.
Nie ukrywam, że cena jest dla mnie bardzo znacząca. Chciałabym aby domki były możliwie jak najtańsze.
Dziękuję za poświęcenie uwagi i proszę o kontakt.
Pozdrawiam
Natalia Walentynowicz
witam jaka cena za domek pozdrawiam
Bitte machen Sie mir ein Angebot und setzen Sie sich mit mir in Verbindung zwecks weiterer Absprachen
MfG Stage
Witam
Proszę o kosztorys domku Tomasz87
Również proszę opodanie ceny tego domku Tomasz -87.
Witam, jestem zainteresowana kupnem domku „Tomasz-87”.Lokalizacja- okolice Sokolowa Podlaskiego.Bardzo prosze o podanie ceny za domek wraz z montazem. Pozdrawiam
Witam, jestem zainteresowana budową domku Tomasz 87.Lokalizacja w okolicy Sokołowa Podlaskiego. Bardzo proszę o podanie kosztów tego domku. Pozdrawiam
Dzień dobry. Zainteresowała mnie Państwa oferta budowy domków drewnianych.
Prosiłbym o podanie ceny domku model: Tomasz-87 – z drzwiami wejściowymi pełnymi układ jak na zdjęciach 16 lub 22 (większy taras, 2 sypialnie, wc, duży pokój).
Jakim materiałem pokryty jest dach domku?
Czy w cenie domku jest malowanie zewnętrzne?
Jaki jest koszt orynnowania domku i okiennic?
Jaki jest koszt transportu – Wodzierady?
Jaki jest koszt projektu w/w domku?
Gdzie mógłbym zobaczy wybudowany taki domek?
Proszę o Cene Domki Tomasz 87
Proszę o Cenie Domki
jak w większości komentarzy pytanie dotyczy ceny za m2 domku Tomasz 87 z wyizolowaną podłogą i ocieplonym dachem krytym gontem bez instalacji domek w wersji z jedną sypialnią i aneksem między łazienką a sypialnią B2
jak w większości komentarzy pytanie dotyczy ceny za m2 domku Tomasz 87 z wyizolowaną podłogą i ocieplonym dachem krytym gontem bez instalacji
interesuje mnie cena domku tomasz87 wraz z tarasem
mam pytanie jaki koszt jest domku na gotowo ,, Tomasz-87″
Witam.
Ponowie pytanie poprzedników.
Jaka jest cena tego domku?
Bez dowozu. Dowóż i montaż każdy sobie może sam policzyć. Nie mam pojęcia co ma na celu brak cen w Państwa ofercie…
Czy nie można podać chociaż cen przykładowych dla orientacji klientów?
witam………interesuje mnie cena z montażem w wersji podstawowej i całorocznej powiększonej…do rozmiaru np.10x10m……w okolicach jeleniej góry
dzień dobry jestem z ostrowa wlkp interesowal by mnie domek letniskowy tomek 87 chodzilo by mi o caly koszt to znaczy transport montarz i wykończenie pod klucz a czy moglby stać na betonowych slupach jest to ogrod działkowy pozdrawiam
Proszę o podanie cenny pod klucz, domku tomasz-87
Prosze o podanie przybliżonej kwoty budowy domku Tomasz-87
z gory dziekuje i pozdrawiam
proszę o cenę wyjściową domku, interesuje mnie domek po modyfikacji. Dlaczego numer podany na stronie nie jest czynny ?
bardzo proszę o wysłanie cennika
Witam!
Mnie również interesuje jego cena (z montażem).
Pozdrawiam
Szanowny Panie/Pani,
Uprzejmie prosze o podanie kosztu (stan surowy oraz z ociepleniem podlogi i dachu) domku Tomasz 87.
Posiadam dzialke lesna 500m2 w Koleczkowie woj. Pomorskie, wiec prosze rownierz o orientacyjny koszt zwiazany z dowozem i montazem.
Z zyczeniami milego dnia
Slawomir Rutkowski
witam moglabym prosic o informacje ile kosztuje taki domek ????bardzo prosze o info i moze strone tej firmy pozdrawiam
Proszę o określenie kosztu domku wraz z montażem.Okolice Szczecina.
witam serdecznie,
Proszę o podanie na maila ceny takiego domkuz 2 pomieszczeniami (WC< pom. gosp) ale o wymiarach 6×7. Proszę też o info czy istnieje możliwość antresoli i jakie to będą dodatkowe koszty?
pozdrawiam
Ania
Witam serdecznie jestem zainteresowany zamówieniem takiego domku moje pytanie to jaka cena z montażem i czy potrzebne jest załatwienie pozwolenia na budowę jak bym chciał postawić na fundamencie Tomasz-87
witam mam pytanko w jakiej cenie jest ten domek ? wraz z mątażem prosze o odpowiedz na -E-mail dziekuje
Witam jestem zainteresowana zakupem domku Tomasz-87 w wersji z 2 sypialniami.Jaki byłby podstawowy koszt domku,czyli materiał + ew.złożenie,transport. W stanie do samodzielnego wykończenia jak np. położenie pokrycia dachowego lub malowanie elewacji itp.Pozdrawiam
Bardzo proszę o podanie przybliżonej ceny zakupu domku Tomasz 87, powierzchnia użytkowa ok.35 m kw. wraz z transportem w okolice Nadarzyna pow. pruszkowski 17 km. od Warszawy. Interesuje mnie wersja z dwoma sypialniami, zadaszonym tarasem ok. 12 m kw., ocieploną podłogą i izolowanym dachem, oraz pokrycie domu impregnatem i pokrycie dachu gontem bitumicznym.
Dziekuję za odpowiedź.
witam
chciałabym prosić o info gdzie w tomaszowie można obejrzeć ten domek gdyż jestem zainteresowana zmodyfikowanym zakupem?
justyna1
Proszę o podanie cenny domku tomasz-87
czy jest możliwosć obejrzenia któregoś z domków w okolicach Warszawy
Planuję postawić domek na swojej działce wśród lasów, ogladam różne domki zainteresowana jestem ceną brutto tego domku (Tomasz 87) w wersji z 2 sypialniami w opcji letniskowej z dowozem, montażem itd. jak również Siedlce 65 i Mińsk 30 z antresolą lub Piotr 64 z poddaszem uzytkowym.
Dlaczego na stronie nie ma podstawowych cen i dodatkowych działań, każdy zainteresowany w przyblizeniu mógłby zorientować sie w cenach
chciałabym prosić o pilne podanie przybliżonej ceny domku tomasz 87 ale w wersji z dwoma sypialnianiami 8x7_cz-wa WIEKSZY TARAS
witam jestem zainteresowany kupmem domka 8×7 prosze o podanie ceny, pozdrawiam
Witam jestem zainteresowany tego rodzaju domkiem w wersji z 2 sypialniami. Teraz pytania czy może on stać na bloczkach zamiast fundamentu oraz ile kosztuje na gotowo z gontami i rynnami. Ewentulna lokalizacja to Wielkopolska
jaka jest cena domku Tomasz-87 . Ewentualny montaż domku to dolnoslaskie 67-200 głogów
jak jest cena budowy takiego domu?
witam, jaka jest cena postawienia tego domku, pozdrawiam
Witam mam pytanie ile kosztowałoby postawienie domku 35 m2 + weranda 12 m2? Pozdrawiam
Jaka jest cena domku Tomasz-87 wraz z montażem
Prosze o podanie ceny domku letniskowego Model: Tomasz-87
Pozdrawiam
rg
dach jest pokryty gądami gądy to taka papa ozdobna
własciwie nie moge znaleźć ceny z montarzem można dostać pelny cennik bardzo mi sie podobaja a jak bym chcial 2 albo 3 postawić ciekawe
Jaka jest cena takiego domku ?
Czym pokryty jest dach w tym domu?
Proszę oczywiście o kontakt telefoniczny z NASZĄ firmą
Jak wiec mam się z tym Panem z kontaktować? Podałem adres poczty ale nr. telefonu nie chce podawać. Pozdrawiam.
Proszę o kontakt telefoniczny lub mailowy. Za pozwoleniem Pana Mirosława bardzo chętnie przekaże jego dane kontaktowe. Myślę, że nie będzie także problemu z oglądaniem domku w Kuznocinie pod Sochaczewem
Witam. Zainteresowany jestem budową podobnego domku. Czy mogę prosić Mirka K o kontakt na pryw tandreo@o2.pl
W czerwcu firma wybudowała mi taki sam domek pod Sochaczewem (małe modyfikacje pomieszczeń wewnątrz). Na domek potrzebowałem projektu – też mi go załatwili. Domek ma ocieploną podłogę i izolowany dach, przymierzałem się do ocieplanie całości. Teraz po kilku miesiącach użytkowania stwierdzam, że odpuszczę. Mały kominek wewnątrz rozwiązuje wszystkie niedogodności.
P.S. Polecam zobaczenie domku na żywo w Tomaszowie – wtedy dopiero można sobie zdać sprawę z wielkiej ilości miejsca wewnątrz.