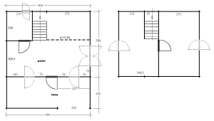
Model: Mazowieckie-55: domki letniskowe całoroczne z tarasem
Powierzchnia: 35m2 parter + 35m2 poddasze
Domki letniskowe Mazowieckie to seria domków drewnianych z poddaszem użytkowym (dom parterowy z poddaszem), wykonany w technologii węgłowej, z ostatkami z balików łączonych na pióro-wpust.
Domki letniskowe Mazowieckie charakteryzuje wysoka estetyka wykonania, wygoda i funkcjonalność w użytkowaniu, prostota i standaryzacja rozwiązań konstrukcyjnych, dzięki czemu uzyskano tanie domki letniskowe o cenie zdecydowanie niższej niż inne projekty o podobnej powierzchni i wyglądzie. Znakomicie sprawdzą się na działce rekreacyjnej, działce budowlane i działce rolnej a także na Rodzinnych Ogrodach Działkowych ROD (popularnych RODos :- )

Wymiary standardowe:
Mazowieckie-55-B – wejście i taras na ścianie pod okapem
Mazowieckie-55-S – wejście i taras na ścianie szczytowej
Powierzchnia: 25m2 parter + 25m2 poddasze (lub inne wymiary)
Dostępne inne wymiary:
– domy drewniane Mazowieckie-65 6x5m – pow. 30m2 parter + 30m2 poddasze
– idealny domek na działki ogrodowe Mazowieckie-75 7x5m – pow. 35m2 parter + 35m2 poddasze
– wymiary wg. życzenia Klienta
Mazowieckie-55 to drewniany dom o wymiarach 5x5m i powierzchni zabudowy 25m2, dzięki czemu uzyskaliśmy możliwość wybudowania jako budynek gospodarczy na zgłoszenie prawie w każdym miejscu (domki bez pozwolenia na budowę). Dom letniskowy piętrowy posiada powierzchnię całkowitą 50m2, bo praktycznie cała powierzchnia poddasza jest do wykorzystania (wysoka ścianka kolankowa – patrz niżej).
Spis treści
Dlaczego domki letniskowe Mazowieckie są idealne na ROD ?
Istnieje możliwość wybudowania tego domu letniskowego o wysokość 500 cm, zatem idealnie sprawdza się na Rodzinnych Ogródkach Działkowych (ROD). Nowe przepisy pozwalają budować domki na działki ROD do 35m2, więc dużym zainteresowaniem cieszą się także większe domki z drewna na działki ogrodowe Mazowieckie-75 35m2.
Domki letniskowe piętrowe Mazowieckie-55 posiadają na parterze wydzieloną łazienkę o wymiarach 2x2m (możliwość zmiany wymiarów). Wnęka obok łazienki najczęściej wykorzystywana jest na wygodny i przestronny aneks kuchenny i dodatkowo doświetlony frontowym oknem. Pozostała część parteru stanowi pokój dzienny. Wysokość parteru ok. 220cm do belek stropowych, więc domek łatwo dostosować do wymogów ROD (maksymalna wysokość 5 metrów)
Na poddasze domu prowadzą proste schody jednobiegowe, tzw. młynarskie z prostą barierką i poręczą, dzięki czemu oszczędzamy powierzchnię parteru. Schody mogą być zarówno po środku domku (jeżeli planujemy podział poddasza) jak i przy ścianie szczytowej (jeżeli chcemy uzyskać dużą, otwartą i niepodzieloną przestrzeń poddasza). Dla osób szukających wygodniejszego rozwiązania, możemy zastosować w domku z poddaszem schody z podestem. Należy jednak pamiętać, że zajmują one dużo więcej miejsca, dlatego najlepiej sprawdza się w domkach 30m2 lub 35m2.
Poddasze domku drewnianego jest pełne (nad całą powierzchnią parteru) i otwarte, bo bez wydzielonych ścian, dzięki czemu uzyskujemy dużą przestrzeń, przestronność i wygodę użytkowania domku. Wydzielenie ścian z drzwiami to opcja płatna, ale dzięki niej powstaną na poddaszu domku drewnianego nawet dwie niezależne sypialnie, dające poczucie prywatności wszystkim użytkownikom budynku. Oczywiście jest też możliwe wybudowanie domku piętrowego z 1 sypialnią.
Niewątpliwym atutem domu z drewna Mazowieckie-55 jest ścianka kolankowa poddasza o wysokości ok. 100cm, bo umożliwia dosunięcie łóżka lub mebli do samej ściany, przez co poddasze jest w pełni wykorzystane na całej swej powierzchni, a nie tylko w najwyższym punkcie po środku domu letniskowego.
A może domek letniskowy z antresolą ?

Istnieje możliwość wykonania budynku jak dom letniskowy z antresolą – model Piotr-64 lub Piotr-55. Antresola w tym przypadku to nic innego jak pół poddasza, a więc jej wysokość oferuje swobodę poruszania się, bez schylania.
Dom uzyskuje swoją pełną funkcjonalność po dodaniu do niego tarasu, który jest dostępną opcja płatną. Taras domu letniskowego jest niewątpliwie miejscem, w którym spędza się najwięcej czasu podczas wypoczynku. Polecamy dom drewniany z tarasem o szerokości ok. 300cm, bo posiada wystarczająco miejsca dla stołu i krzeseł nawet dla kilku osób. Taras można zamontować przy ścianie bocznej lub szczytowej.
Domy Mazowieckie charakteryzują następującymi parametrami:
Ściany: wykonane z prostokątnego balika drewnianego o grubości 45mm. Dom w całości wykonany z drewna suszonego komorowo, a nie sezonowanego, dzięki czemu pozbyliśmy się drobnoustrojów i larw owadów, zarodków grzybów i pleśni. Dodatkowo uzyskaliśmy precyzyjnie obrobione, czterostronnie strugane drewno, idealne wymiary i jakość powierzchni, więc drewno nie rozsycha się po montażu. W naszych domach drewnianych stosujemy podwójne pióro-wpust, więc otrzymujemy bardzo szczelne połączenie balików. Po wstawieniu odpowiedniej konstrukcji oraz ociepleniu ścian wełną mineralną uzyskamy bez problemy domek letniskowy całoroczny.
Podwaliny i miejsca niedostępne po montażu (np. spód podłogi) impregnowane bezbarwnym Fobosem. Pozostałe elementy niemalowane, do malowania po montażu (opcja).
Podłoga: gruba deska podłogowa 28mm na legarach drewnianych impregnowanych, wykonana z desek struganych czterostronnie, łączonych na pióro-wpust. Rozstaw legarów pod podłogą domku jest dobrany w taki sposób, aby podłoga nie uginała się pod ciężarem osób oraz mebli.
Dach: pełne deskowanie z desek struganych 21mm, łączonych szczelnie na pióro-wpust, na belkach 140x70mm, standardowo kryty papą, ale możliwe jest zastosowanie innego pokrycia dachu, np. gont bitumiczny w dowolnym kolorze.
Drzwi i okna typu letniskowego, okute w zamki i klamki, oszklone. Standardowo w domu Mazowieckie-55 znajduje się 7 skrzydeł okiennych: 2 okna podwójne na parterze, 1 okno w łazience, 2 okna pojedyncze na poddaszu. Wymiary okien: pojedyncze 70x95cm, podwójne 140x95cm, łazienkowe 55x55cm. Możliwość montażu zarówno dodatkowych okien drewnianych letniskowych, jak i okien PCV w kolorze imitującym drewno. Drzwi wejściowe i wewnętrzne drewniane o szerokości skrzydła 80cm, pełne. Jednakże istniej możliwość montażu ocieplanych drzwi stalowych w takim samym kolorze jak okna pcv. Zarówno okna pcv i drzwi wejściowe ocieplane stosujemy najczęściej budując drewniany domek letniskowy całoroczny.
Inne parametry domku
Fundament:
Domki Mazowieckie mogą być posadowione zarówno na płycie betonowej (wylewce), jak i kostce brukowej, ażurowych płytach betonowych tzw. jumby lub bloczkach betonowych. Podwaliny do wykonania przez Klienta na podstawie planu dostarczanego przez producenta domów z drewna. Nie wykonujemy prac murarskich, w tym fundamentu i komina
Montaż wykonuje ekipa producenta domu drewnianego. Wielu naszych Klientów decyduje się jednak na samodzielny montaż domku letniskowego.
Transport: koszty transportu domków letniskowych i całorocznych ustalany indywidualnie
Taras w domku letniskowym oraz inne opcje dodatkowe
– taras zadaszony z podłogą i barierkami, o dowolnych wymiarach (np. 5x3m, 5×2,5m), montowany na ścianie szczytowej (wersja 55-S) lub na ścianie bocznej (wersja 55-B)
– inna grubość balika np. 45mm
– dodatkowe ścianki działowe na poddaszu lub parterze
– montaż dodatkowych drzwi i okien
– okiennice
– malowanie domu letniskowego z zewnątrz po montażu impregnatem, który dostępny jest w wielu kolorach
– okna pcv lub dodatkowe okna drewniane, także z szybą zespoloną
– możliwość wykonania jako domki letniskowe całoroczne
Jako producent domków letniskowych Mazowieckie jesteśmy w stanie wprowadzić dowolne modyfikacje do oryginalnego projektu domu, zarówno w konstrukcji (np. zmiana ilości pomieszczeń) jak i prostsze modyfikacje np. ilość okien. Dodatkowo możemy wyprodukować prawie każdy domek drewniany, także na podstawie indywidualnych planów, rysunków , zdjęć lub opisu. Produkcja domków drewnianych odbywa się w naszym zakładzie w okolicach Tomaszowie Mazowieckim.
Domki drewniane Mazowieckie – przykładowe realizacje
Ogródki działkowe ROD w Bożenkowie, k. Bydgoszczy, kujawsko – pomorskie
Domek letniskowy Mazowieckie-65-B na zdjęciach wyposażony jest opcjonalnie w:
– taras o wymiarach 6x3m
– domek na ogródkach działkowych powiększony do wymiaru 600x550cm 33-35m2 (zamiast 600x500cm 30m2)
– domek działkowy Mazowieckie-65 obniżony do wysokości 500cm zgodnie z wymogami ROD
– okiennice na parterze oraz poddaszu domu letniskowego Mazowieckie-65
– wydzielenie jednej sypialni na poddaszu drewnianego domku Mazowieckie
– schody „kacze” zamiast standardowych prostych schodów młynarskich
– ocieplenie poddasza domku, o oczywiście wykończenie podbitką drewnianą
– budowa domu nad piwnicą: dodatkowe podpory podłogi domku działkowego
Działka nad Jeziorem Jeziorsko, Zaspy Miłkowskie, łódzkie
Domek letniskowy Mazowieckie-55-B na zdjęciach wyposażony opcjonalnie w:
– taras o wymiarach 5x3m, czyli o szerokości takiej jak ściana frontowa domku letniskowego
– okno podwójne zamiast pojedynczego na ścianie frontowej
– dodatkowe okno pojedyncze na ścianie bocznej
– okiennice tylko na parterze, a więc piętro domu letniskowego bez okiennic
– malowanie domku drewnianego Mazowieckie-55 impregnatem Altax lub Remmers

123Domki.pl to polski producent domków drewnianych, oferujący szeroki wybór modeli letniskowych, ogrodowych i całorocznych, wykonanych z wysokiej jakości drewna sosnowego lub świerkowego, suszonego komorowo i czterostronnie struganego . W ofercie znajdują się domki o różnych rozmiarach i konfiguracjach, takich jak parterowe, z poddaszem czy antresolą, a także garaże drewniane i kioski handlowe . Klienci mogą wybierać spośród gotowych projektów lub zamówić domek dostosowany do indywidualnych potrzeb, z możliwością modyfikacji układu pomieszczeń, dodania tarasu czy innych udogodnień . Dzięki solidnej konstrukcji i estetycznemu wykonaniu, domki 123Domki.pl cieszą się popularnością zarówno w Polsce, jak i za granicą, stanowiąc idealne rozwiązanie dla osób poszukujących funkcjonalnego i przytulnego miejsca do wypoczynku .

















































Dobrý den, prosím o cenovou nabídku Chaty Mazowieckie-55 25m2.
Dzień dobry poproszę o wycenę domku Mazowieckie-75 z montażem i ociepleniem
Witam. Prosze o wycene domku mazowieckie 55s z poddaszem montażem. Pozdrawiam
Proszę o wycenę domku z montażem w wersji Mazowieckie-65 oraz Mazowieckie-75 na ogródki działkowe w Łodzi. Z pokryciem dachu oraz dwoma sypialniami na poddaszu (ścianki + drzwi).
proszę o wycenę domku Mazowieckie lub innego modelu wymiarem zbliżonym do 35m2 (maksymalne wykorzystanie wielkości pozwalającej na budowanie na zgłoszenie) z antresolą lub poddaszem oraz zadaszonym tarasem wraz z montażem. Interesuje mnie również cena dodatkowych opcji jak: ocieplenie, okiennice, pokrycie dachu gontem. Na parterze wydzielone pomieszczenie na łazienkę. Transport i montaż w okolice Kartuz. To nie jest działka ROD. Joanna
proszę o wycenę
Mazowieckie-65-B (zabudaowa do 5m ROD ) wyposażony w:
– na dole łazienka 2×2
– salon z aneksem
– góra niedzielona
– taras o wymiarach 6x3m zadaszony
transport Nakło Śląskie (woj. Śląskie)
Domki letniskowe Mazowieckie-55 25m2, poproszę o cenę z montażem woj łódzkie
Witam. Jestem zainteresowana domkiem o wymiarach 5/7 max 35m2 , antresola i taras. Proszę o wstępną wycenę z dowozem . Pozdrawiam Iwona
Dzień dobry,
Bardzo proszę o wycenę domku Mazowieckie-75 i -65 lub innego 35m2 + 35m2 wychodzącego najtaniej.
dodatkowe opcje:
– taras zadaszony z podłogą. (10 – 12m)
– dodatkowa ścianka działowa na poddaszu
– pokrycie dachu gontem ( lub coś tańszego ale równie sensownego)
– orynnowanie.
-ocieplona podøoga
– kominek jeśli jest taka opcja.
– Transport w okolice Mniszewa nad Pilicá gm,Magnuszew i montaż.
Poproszę o wycenę domku Mazowieckie 55 z tarasem, pokryciem dachu gontem, okiennicami oraz orynnowaniem.
Jaki jest metraż domku i najkrótszy czas oczekiwania.
Proszę o pełną wycenę – z transportem i montażem modelu Mazowieckie 55-S – o wysokości 5 m na ROD w Szczecinie.
Witam proszę o wycenę domku Mazowieckie -75 z tarasem krytym i podloga z montażem. Woj.Lubelskie
Proszę o wycenę domku Mazowsze-55
25m2 z poddaszem
Na dole wydzielona łazienka 2×2 ,salon z aneksem, góra niepodzielona do 5m całkowita wysokość.
Witam,
proszę o wycenę domku Mazowieckie lub innego modelu wymiarem zbliżonym do 35m2 (maksymalne wykorzystanie wielkości pozwalającej na budowanie na zgłoszenie) z antresolą (po obu stronach sypialnie) oraz zadaszonym tarasem wraz z montażem do stanu surowego. Interesuje mnie również cena dodatkowych opcji jak: ocieplenie, okiennice, pokrycie dachu gontem. Na parterze wydzielone pomieszczenie na łazienkę. Transport i montaż w okolice Grabów nad Pilicą. To nie jest działka ROD. Dziękuję, pozdrawiam, Ewa.
Witam,
proszę o wycenę domku Mazowieckie do 35m2 z antresolą oraz zadaszonym tarasem.
Interesuje mnie również cena dodatkowych opcji jak: montaż, ocieplenie, okiennice, pokrycie dachu gontem. Na parterze wydzielone pomieszczenie na łazienkę oraz sypialnię.
Transport w okolice Warszawy
Proszę o pełną wycenę domku Mazowieckie-65 6x5m – pow. 30m2 parter + 30m2 poddasze z tarasem i transportem do miejscowości kopań nad morzem.
Proszę o wycenę domku Mazowieckie-75 B 7x5m – pow. 35m2 parter + 35m2 poddasze
– taras zadaszony z podłogą, montowany na ścianie pod okapem
– dodatkowa ścianka działowa na poddaszu
– pokrycie dachu gontem
– orynnowanie
– ocieplenie poddasza domku
– ocieplenie podłogi na parterze domku
– okiennice parter
i w wersji
– ocieplenie całego domku
Domek ma byc w Łomiankach pod Warszawa na terenie ogródków działkowych
Witam,
proszę o wycenę domku Mazowieckie do 35m2 z antresolą oraz zadaszonym tarasem.
Interesuje mnie również cena dodatkowych opcji jak: montaż, ocieplenie, okiennice, pokrycie dachu gontem. Na parterze wydzielone pomieszczenie na łazienkę oraz sypialnię.
Transport w okolice Warszawy.
Witam. Poproszę o wycenę domku Mazowieckie 55 z tarasem +podłoga, ociepleniem podłogi i dachu, orynnowanie, okiennice oraz montaż. Dziękuję
Witam proszę o wycenę domku letniskowego drewnianego z tarasem i poddaszem dzielonym na pól. Montaż, transport, ocieplenie. Wymiary takie żeby zmieścił się do 35 metrów kwadratowych, na dole salon z aneksem kuchennym i łazienką a na górze antresola z dwoma sypialniami.
pozdrawiam
Dzień dobry.Jestem zainteresowana domkiem Mazowieckie 75 z ocieploną podłogą parter.proszę o wycenę z montażem i transportem,oraz transport bez montażu. Okolice Białegostoku.
Pozdrawiam
Witam proszę o wycenę domku mazowieckie 65 z montażem i dojazd mlawa 06_500
Proszę o wycenę domku przeznaczonego do rod 35m2 z poddaszem 5m wysoki, ocieplenie z wykończeniem czyli orynnowanie,elektryka,kanaliza. Parter aneks z salonem i łazienka, poddasze podzielone ścianka. Wielkopolsce Poznań i okolice.
Dzień dobry,
Bardzo proszę o wycenę domku Mazowieckie-75 lub innego 35m2 + 35m2 wychodzącego najtaniej. (poddasze może być troche niższe, ale kształt domku bez znaczenia)
Dodatkwe opcje:
– fundament punktowy (jeśli jest taka opcja)
– taras zadaszony z podłogą. (10 – 12m)
– dodatkowa ścianka działowa na poddaszu
– pokrycie dachu gontem ( lub coś tańszego ale równie sensownego)
– orynnowanie.
– ocieplenie całego domku
– kominek jeśli jest taka opcja.
– elektryka jeśli jest taka opcja.
– Transport w okolice Kwidzyna i montaż.
Witam proszę o wycenę domku letniskowego drewnianego z tarasem i poddaszem dzielonym na pól. Montaż, transport, ocieplenie. Wymiary takie żeby zmieścił się do 35 metrów kwadratowych, na dole salon z aneksem kuchennym i łazienką a na górze antresola z dwoma sypialniami.
Proszę jeszcze o cenę domku mazowieckie 65dostosowane do rod z
do 5m z tarasemm i okiennicami z ociepleniem , montażem pozdrawiam
Witam proszę o podanie ceny domku mazowieckie 55dostosowane do rod 5m wysoki z ociepleniem i montażem w Łodzi pod połową domku jest piwnica .pozdrawiam
Mazowieckie-55-S – poprosze o cenę i dostępne terminy najbliższe.
Proszę o wycenę domku Mazowieckie-75 B 7x5m – pow. 35m2 parter + 35m2 poddasze
– taras zadaszony z podłogą, montowany na ścianie pod okapem
– dodatkowa ścianka działowa na poddaszu
– pokrycie dachu gontem
– orynnowanie
– ocieplenie poddasza domku
– ocieplenie podłogi na parterze domku
– okiennice parter
i w wersji
– ocieplenie całego domku
Domek ma byc w Tomaszowie Mazowieckim:)
Proszę o pełną wycenę domku 35m2 + 35m2 z tarasem i transportem do Niewodnicy Kościelnej (7 km na płd-zach od Białegostoku) gmina Turośń Kościelna
Witam,
jestem zainteresowany domkiem 35m2 podstawy + piętro. Proszę o kontakt.
proszę o wycenę domku Mazowieckie 65 wersja ocieplona z Antersolą na 3/5 domku, blachodachówka, wersja z tarasem 3×5. Budowa koło Wyszkowa (mazowieckie). Najlepiej jakby na wiosnę już stał
Witam proszę o wycenę domku mazowiecki-65B wejście i taras od strony bocznej j z ocieploną podłogą i dachem, ścianki działowe na poddaszu, pokryty gontem+rynny,cena wraz z montażem i transportem okolice Brdowa, Izbicy Kujawskiej. Taras 6×3 m.. Jaki jest możliwy najbliższy termin.
Pozdrawiam
Witam,
proszę o wycenę domku Mazowieckie-55-B – wejście i taras na ścianie pod okapem. pow. 30m2 parter + 30m2 poddasze.Schody po środku domku.
– o wysokość 5m
– taras z samą podłogą, montowany na ścianie pod okapem
– okiennice
proszę o wycenę w wersji standard i z ociepleniem całego domku.
Pozdrawiam,
Weronika
Dzień dobry,
Proszę o wycenę domku mazowieckie 55
Proszę o wycenę domku Mazowieckie 55B ocieplenie poddasza i podłogi . Proszę podać ceny pokryć dachowych , orynnowania , montażu . Kajetany
Dzień dobry,
proszę o wycenę dwóch domków drewnianych: Mazowieckie 55B(25m2) oraz Tomasz 65(25m2).
Z poważaniem,
Anna
Witam
Prosze o wycene domku mazowieckie 55 25 m2 z poddaszem, z lazienka i kuchnia na dole oraz ociepleniem zimowym. Jaki koszt transportu i montazu w szwecji w Halmstad? czy na lawete sie zmiesci czy trzeba miec samochod sredni dostawczy jesli mam miec wlasny transport. Dziekuje z gory za wycene.
Witam ,Mazowieckie-75 7x5m – pow. 35m2 parter + 35m2 poddasze na działkę rod proszę o wycene takiego domku
Witam, poproszę o wycenę domku działkowego Mazowieckie-65 obniżonego do wysokości 500 cm i wymiarach 600x550cm, z okiennicami na parterze i poddaszu. Wydzielona jedna sypialnia na poddaszu że schodami „kaczymi” ociepleniem poddasza wykończeniem podbita drewniana. Montaż i transport również poproszę w wycenę. Mazowieckie Malichy ogródki działkowe.
Z Poważaniem
Urszula
Dzień Dobry
Proszę o wycenę domku Mazowieckie-65B 6x5m – pow. 30m2 parter + 30m2 poddasze
-domek ustawiony na bloczkach betonowych – wypoziomowanych przez Państwa firmę
– taras zadaszony z podłogą, montowany na ścianie pod okapem
– dodatkowa ścianka działowa na poddaszu
– pokrycie dachu gontem
– orynnowanie
– ocieplenie całego domku, tj podłogi, ścian i poddasza (dachu)
– okiennice parter
-okna PCV w okleinie imitującej drewno
-Drzwi wejściowe antywłamaniowych w okleinie imitującej drewno.
– impregnacja całego domku
– instalacje wod- kan oraz instalacja elektryczna
-transportu wraz z montażem
-czy jest szansa na zbudowanie domku w tym roku, oraz ile czasu trwa budowa?
Proszę podać termin wykonania zamówienia. Realizacja w miejscowości Henrykowo, 90-120 Folwark Nowe Miasto, powiat płoński.
Proszę jeszcze o podanie cen dla wariantu Mazowieckie-70 B 7x5m
Pozdrawiam serdecznie
Anna Kania
Witam, proszę o wycenę domku Mazowieckie 55B, zadaszonym tarasem 3x5m , wydzieleniem 2 pomieszczeń na poddaszu, impregnatem i dociepleniem podłogi pomiędzy legarami. Proszę o wycenę wariantową (rozpisanie na części) – jaki byłby dodatkowy koszt za:
– ocieplenie całego budynku
– okiennice na parterze
– instalację elektryczną (jeśli jest taka możliwość)
– transport do Katowic
– ile wynosi montaż domku
To samo zapytanie dotyczy domku Mazowieckie 65 – jaki koszt i wycena wariantowa z powyższego zapytania.
Witam
Proszę o wycenę na trzy domki do 35 m2 z tarasem
Województwo zachodniopomorskie miejscowość Gąski.
Pozdrawia
Agata Saganowska
Proszę o wycenę domku Mazowieckie-55 5x5m – pow. 25m2 parter + 25m2 poddasze
– taras zadaszony z podłogą, montowany na ścianie pod okapem
– dodatkowa ścianka działowa na poddaszu
– pokrycie dachu gontem
– orynnowanie
– ocieplenie poddasza domku
– ocieplenie podłogi na parterze domku
– okiennice parter
i w wersji
– ocieplenie całego domku
Proszę podać termin wykonania zamówienia. Interesuje mnie kwiecień – maj 2018 r
Realizacja w miejscowości Mszczonów woj. mazowieckie
Proszę jeszcze o podanie cen dla wariantu Mazowieckie-65 B 6x5m
Proszę o wycenę domku Mazowieckie-75 B 7x5m – pow. 35m2 parter + 35m2 poddasze(dom na zgłoszenie )
– taras zadaszony z podłogą, montowany na ścianie pod okapem
– pokrycie dachu gontem
– orynnowanie
– okiennice parter
– ocieplenie całego domku
– montaż
-. transport
Proszę podać termin wykonania zamówienia. Interesuje mnie lato 2018 r
Realizacja województwo kujawsko-pomorskie okolice Torunia.
Pozdrawiam
Chce się podpiac pod ten post. Domek 5×7 m ocieplony kryty czerwona blacha i wysokosc 5m. Z możliwością transportu na teren warmińsko mazurskie. Proszę o wycenę.
Proszę o wycenę domku Mazowieckie-75 B 7x5m – pow. 35m2 parter + 35m2 poddasze
– taras zadaszony z podłogą, montowany na ścianie pod okapem
– dodatkowa ścianka działowa na poddaszu
– pokrycie dachu gontem
– orynnowanie
– ocieplenie poddasza domku
– ocieplenie podłogi na parterze domku
– okiennice parter
i w wersji
– ocieplenie całego domku
Proszę podać termin wykonania zamówienia. Interesuje mnie kwiecień – maj 2018 r
Realizacja w miejscowości Bobrowniki gmina Kluczewsko 29-120
Proszę jeszcze o podanie cen dla wariantu Mazowieckie-65 B 6x5m
Pozdrawiam
Witam proszę o wycenę Mazowieckie 55S ocieplony całoroczny cena i transport oraz montaż Rawa Mazowiecka
Witam proszę o wycenę domku mazowiecki-65S wejście i taras od strony szczytowej w wersji cało rocznej z ocieploną podłogą,cena wraz z montażem i transportem okolice Rawa Mazowiecka
Witam , proszę o wycenę domku mazowieckie 60 z poddaszem z tarasem 6×3 z montażem okolice Długosiodła mazowieckie.
Szanowni Państwo,
Proszę o wycenę domku letniskowego drewnianego Mazowieckie-65 6x5m – pow. 30m2 parter + 30m2 poddasze (schody na środku).
Z poważaniem,
Magda
Dzień dobry, proszę o wycenę domków 7×5 okolice Poddębic.
Proszę o wycenę domku Mazowieckie-75 7x5m – pow. 35m2 parter + 35m2 poddasze
– taras zadaszony z podłogą, montowany na ścianie szczytowej
– dodatkowa ścianka działowa na poddaszu
– pokrycie dachu gontem
– orynnowanie
– ocieplenie poddasza domku
– ocieplenie podłogi parterowej domku
– okiennice parter
lub
– ocieplenie całego domku
– okiennice parter + piętro
Czas na wykonanie? Elbląg 82-300
Oraz jaki byłby koszt dla wariantu Mazowieckie-65?
Proszę o wycenę domku Mazowieckie-75 7x5m oraz Mazowieckie-55-B – wejście i taras na ścianie pod okapem dla porównania, wejście i taras od szerszej strony. Góra otwarta.
Proszę też o podanie dodatkowych kosztów
– ocieplenie całego budynku
– okiennice na parterze
– powiększenie okna wychodzącego na taras i dodatkowe okno na parterze w ścianie bocznej
– pokrycie dachu gontem i orynnowanie
– instalację elektryczną (jeśli jest taka możliwość)
– transport do Łodzi
– ile wynosi montaż domku i ile czasu trwa?
witam
proszę o wycenę domku Mazowieckie-55-B – wejście i taras na ścianie pod okapem oraz transport do Kalisza wlkp.
Proszę o wycenę domku Mazowieckie-75 7x5m – pow. 35m2 parter + 35m2 poddasze
– taras zadaszony z podłogą, montowany na ścianie szczytowej
– dodatkowa ścianka działowa na poddaszu
– jedno okno podwójne zamiast dwóch pojedynczych na ścianie frontowej
– pokrycie dachu gontem
– orynnowanie
– ocieplenie poddasza domku
– ocieplenie podłogi parterowej domku
– okiennice parter
lub
– ocieplenie całego domku
– okiennice parter + piętro
Czas na wykonanie?
Montaż oraz transport do Łodzi .
Proszę o wycenę domku Mazowiecki 65 z tarasem 6×3 na szczycie, ocieplana podłoga, ewentualnie dodatkowe okno i okiennice. Montaz na działce koło Chocenia(kuj.pomorskie).
Pozdrawiam
Proszę o wycenę domku letniskowego mazowieckiego 75 7×5 35m2 z montażem i transportem z zabudowanym całym poddaszem, bez tarasu. Czy domek nadaje się na zgłoszenie? 59-300 Lubin
Proszę o wycenę domku Mazowieckie-75 7x5m, z montażem i dowozem do Szczecina. Dziękuję.
Witam
Proszę o podanie ceny dla Domku letniskowego Mazowieckie-55 25 m2 z montażem i transportem do Borkowa koło Żukowa
Pozdrawiam
Gabriela Mikuczińska
Proszę o wycenę całkowita domku letniskowego mazowieckie 55
Proszę o wycenę domku MAZOWIECKIE 75B w województwie warmińsko-mazurskim powiat Kętrzyn z tarasem.
Witam,
Poproszę o wycenę domku Mazowieckie-55-B ze schodami po środku domku,tarasie o wymiarach 5x3m, okiennicami na parterze, piętro domu letniskowego bez okiennic.
pozdrawiam,
Katarzyna
Witam serdecznie. Prosze o wycene domku mazowieckie 55 z tarasem do 12m pietro nie dzielone lub dzielone na 2 sypialnie, rynny, pokrycie dachu gontem, zamykane okiennice, dowoz i montaz w poznaniu. Obnizenie dachu by spelnial standardy rod. Pozdrawiam Zaneta
Witam, proszę o wycenę domku Mazowieckie 55B, zadaszonym tarasem 3x5m (lub opcjonalnie wydłużonym do 3,5x5m), wydzieleniem 2 pomieszczeń na poddaszu, impregnatem i dociepleniem podłogi pomiędzy legarami. Proszę o wycenę wariantową (rozpisanie na części) – jaki byłby dodatkowy koszt za:
– ocieplenie całego budynku
– okiennice na parterze
– powiększenie okna wychodzącego na taras i dodatkowe okno na parterze w ścianie bocznej
– pokrycie dachu gontem i orynnowanie
– instalację elektryczną (jeśli jest taka możliwość)
– transport w okolice Serocka w woj. mazowieckim (kod pocztowy 05-140)
– ile wynosi montaż domku i ile czasu trwa?
Czy możliwe jest najpierw wybudowanie samego domku (za starym budynkiem obecnie użytkowanym), a po jego wyburzeniu – dobudowanie tarasu do nowego domku?
To samo zapytanie dotyczy domku Mazowieckie 65 – jaki koszt i wycena wariantowa z powyższego zapytania.
Proszę o wycenę domku Mazowieckie 65B – 6x5m
– bez tarasu
– z ociepleniem podłogi
– montaż ok. Pisza
Pozdrawiam i prosze o wycenę domku,
Wycena domku MAZOWIECKI 55B Proszę o ofertę domku Mazowieckie 55B z dociepleniem podłogi parteru między legarami i scian, z pochyleniem dachu od 30 st. razem z montażem i dowozem Rojewo gmina Rogowo pow Rypinski woj kujawsko-pomorskie. Wersja podstawowa (standard jak w opisie powyżej plus ocieplenia podłogi) jak na zdjęciach. Taras 6×3. Czy dajecie jakieś szczegółowsze plany? Pozdr.
Proszę o wycenę domku Mazowiecki 55 b. z montażem
Poproszę o wycenę mazowieckie 75s wraz z instalacją, ociepleniem, montażem, lakierowaniem i transportem Cerkiewnik (warmińsko-mazurskie). . Jako opcje dodatkowe: pokrycie dachu blachodachówką oraz orynnowaniem okna pcv lub drewniane z szybą zespoloną, okiennice, podwójne okno na ścianie bocznej.
Czy jest możliwe przesłanie projektu Mazowieckie 60 z poddaszem i tarasem. nawet odręcznie potrzebuję tego dla syna do zajęć technicznych w 6 kl. szkoły podstawowej.
Proszę o podanie ceny domku z montażem ok. Radomia
Mazowieckie-55-B – wejście i taras na ścianie pod okapem
Witam. Proszę o wycenę domku mazowieckie 5mx5m z poddaszem. Stan zamknięty z drzwiami, oknami i okiennicami, bez tarasu?
Witam..Proszę o podanie orientacyjnej ceny wykonania domku mazowieckie-55 Dom z poddaszem o wymiarach 5×5 – ze schodami, oknami i dzwiami oraz okiennicami. Domek bez tarasu pokryty papą w okolicach śląskiego – Szczekociny.
Prosze o wycene domku Mazowieckie 75 7×5 wraz z transportem I montazem woj. Kujawsko-pomorskie
Jestem zainteresowana domkiem 30m2 parter z poddaszem użytkowym. Proszę o podanie przybliżonego kosztu oraz terminu wykonania (dla okolic Jakubowa k. Mińska Mazowieckiego). Z góry dziękuję i pozdrawiam.
Proszę o podanie kosztu domku Mazowieckie-75 7x5m – pow. 35m2 parter + 35m2 poddasze.
Witam proszę o wycenę domku Mazowiecki 55s z montażem . Proszę również o inny cennik pozostałych domków – zainteresowana jestem domkiem bez pozwoleń z poddaszem.
Poproszę o wycenę mazowieckie 55b wraz z instalacją ociepleniem i montazem
Witam,
proszę o wycenę domku Mazowieckie-65 6x5m z tarasem
pozdrawiam
Proszę o wycenę domku Mazowieckie 65 (6x5m – pow. 30m2 parter + 30m2 poddasze) z tarasem w wersji z antresolą i bez. Z transportem 57-400 ( Kotlina Kłodzka). Czy istnieje możliwość samodzielnego montażu? Pozdrawiam
Proszę o ofertę domku Mazowieckie 65B z dociepleniem podłogi parteru między legarami, z pochyleniem dachu od 30 st. razem z montażem i dowozem (Okolice Nidzicy). Wersja podstawowa (standard jak w opisie powyżej oprócz ocieplenia podłogi) jak na zdjęciach. Taras 6×3. Czy dajecie jakieś szczegółowsze plany? Do zgłoszenia potrzebne są szkice. Czy kierownictwo robót (osoba z uprawnieniami) jest zapewnione przy montażu?
Pozdr.
domek działkowy Mazowieckie-65 obniżony do wysokości 500cm proszę o cenę oraz koszty do M
m. Międzyzdroje
Dzień dobry, Bardzo proszę o wycenę domku letniskowego Mazowieckie-65-B o wymiarach 600×550 z tarasem przy ścianie szczytowej o wymiarach 550×300 oraz „półtarasem” o wymiarach 150×600 z poddaszem bez ścianek działowych.
Proszę o wycenę domku Mazowieckie 65 z tarasem, jak zdjęcia na górze strony: http://www.123domki.pl/domki-letniskowe-mazowieckie-55-25m2/
http://www.123domki.pl/wp-content/uploads/2015/04/domki-drewniane-Mazowieckie-65-01-.jpg
Witam,
poszukuję domku na działkę ROD warszawa,.
Intereuje mnie wycena 30-35 m podłogi domku na ogródkach działkowych, może posaidać piętro lub antresolę,a jaki koszt parterowego 35m.
I jaki bylby dodatkowy koszt z ociepleniem.
pozdrawiam i czekam nieciespliwie na informację
Renata
Witam. Chciałabym prosić o podanie ceny domku Mazowieckie-55-B (25+25m2 z poddaszem), z tarasem 3 metry, wydzieleniem ściany na poddaszu, impregnatem i okiennicami (bez 1. piętra). A osobno ile kosztowałyby jeszcze: drzwi antywłamaniowe i pokrycie dachu blachodachówką (jeśli jest taka opcja)? Proszę również podać cenę transportu i montażu dla kodu 87-851 (kujawsko-pomorskie). Dziękuję z góry za odpowiedź i pozdrawiam.
prosze o wycene domku 55-b
dostawa montaz
grodzisk mazowiecki pod warszawa
Witam,
Jaki jest koszt domku Mazowieckie-75 z ociepleniem, montażem, transportem, malowaniem oraz tarasem 3 na 5. Działka znajduje pod Wyszkowem.
Pozdrawiam
Proszę podać jaka jest cena domku Mazowieckie 55 z poddaszem podzielonym na dwa pomieszczenia ; z montażem i bez na działce k/ Drezdenka.
Pozdrawiam
Witam,
Proszę o informację n/t kosztu domku typ Mazowieckie-65 (600x500cm) z montażem i transportem na terenie woj. warm.-maz. (gmina Godkowo). Proszę uwzględnić pokrycie dachu blachodachówką oraz orynnowaniem. Jako opcje dodatkowe: okna pcv lub drewniane z szybą zespoloną, okiennice, podwójne okno na ścianie bocznej; docieplenie, schody poszerzone (kacze). Domek obniżony do wysokości 500cm, taras zadaszony z podłogą o wymiarach 6x2m. Na poddaszu wydzielone dwie sypialnie z drzwiami. Domek zaimpregnowany.
Dziękuję i pozdrawiam
Jaki jest koszt Mazowieckie-55-B z montażem i bez + transport na Kaszuby ?
Czy to się łapie na nowe przepisy na zgłoszenie ?
Witam. Ile kosztowałby domek Mazowieckie 65, a ile 55 (z poddaszem podzielonym na 2 pokoje) z montażem? Działka w województwie pomorskim (82-550).
Jaki jest kąt nachylenia dachu w tym domku?
Czy cena zawiera projekt architektoniczny?
Dziękuję.
Proszę o podanie ceny dla Domku letniskowego Mazowieckie-55 25m2 oraz 65 30m2.
Witam
Chciałem się zapytac o cene domku 25m2 bez tarasu ?
Pozdrawiam
Jaka jest cena domku z montażem (stan surowy zamkniety)
Witam,
Jestem zainteresowana wybudowaniem takiego domku na działce ROD w Warszawie. Jaka jest cena domku Mazowieckie-65-B z tarasem 3×6 m a jaka domku 55-B z tarasem 5×3 m łącznie z transportem i montażem brutto? Pozdrawiam.
Witam, z tego co wiem budynek gospodarczy nie powinien przekraczać 25m2, tutaj jest dodatkowo taras. Łącznie przekracza ten metraż. Czy to jest dopuszczalne? chciałabym sie dowiedzieć jaka jest cena domku Mazowiecki 55 + montaż. Jaka cena bez tarasu. Jaki termin realizacji? Pozdrawiam
Witam,
interesuje mnie domek Mazowieckie 7×5 z poddaszem z dwoma sypialniami i zadaszonym tarasem. Chciałbym poznać cenę takiego domku z montażem ??
Witam!
Jaki jest koszt domku Mazowieckie-75 7x5m z montażem i bez okolice Ełku warmińsko mazurskie ?
Witam, jestem zainteresowana domkiem Mazowieckie 55 jaka jest cena? Także ewentualnie z tarasem, czy można przy projekcie proponować zmiany także co do wielkości okien i jak to ew. wpływa na koszt?
Jaka jest zaś cena Piotra 64 i 55 – w wariancie jak w Państw opisie powyżej?
Okolice Nowego Dworu Mazowieckiego
witam mam pytanie ,ile kosztuje domek mazowieckie 55 b.w wersji podstawowej z montażem. Działka na Mazurach w gminie Dźwieruty
Dzień dobry,
Jestem zainteresowany domkiem Mazowieckie-75 7x5m plus taras zadaszony 12m2. Domek ma powstać na terenie ROD. Czyli te parametry są zgodne z regulaminem. Wysokość max 5m.
Jaka cena?
Pozdrawiam
Adam Piotrowski
Witam!
Interesuje mnie cena tego domku.
Pozdrawiam!
witam, interesuje mnie cena domków na zgłoszenie z poddaszem, inwestycja na podkarpaciu- rzeszów
W sprawie ceny ZAWSZE odsyłam odpowiedź na email.
Cztery możliwości przekroczenia 25m2 pow. zabudowy:
1. Domek budowany był na działkach ROD, i tutaj przepisy wewnętrzne dopuszczają oprócz właściwego budynku taras, najczęściej do 12m2. Przy okazji przypominam, że aktualnie na ROD można budować budynki do 35m2 powierzchni zabudowy
2. Domek budowany był na zwykłej działce, ale inwestorowi udało się zgłosić 2 budynki: domek gospodarczy oraz altanę (de facto zabudowany i zadaszony taras)
3. Budynek budowany był na pozwolenie na budowę, czyli projekt itd. więc przekracza 25m2
4. Inwestor zgłosił tylko domek i wybudował dodatkowo taras, licząc się z możliwością jego ewentualnego demontażu w przyszłości (wystarczy zdemontować dach, albo zastąpić go np. rozwijaną, rozkładaną markizą)
Witam, z tego co wiem budynek gospodarczy nie powinien przekraczać 25m2, tutaj jest dodatkowo taras. Łącznie przekracza ten metraż. Czy to jest dopuszczalne? Ile kosztowało by postawienie takiego domku w okolicach miejscowości Ostrów Warcki.
Witam jestem zainteresowana tym domkiem i interesuje mnie cena wraz z zadaszonym tarasem 5x3m oraz wycena transportu do Choczewa (woj. pomorskie).
Z góry dziękuję
Witam bardzo jestem zainteresowana tym domkiem dlatego pytam o cenę domku i transport do Rypina woj.kjawsko-pomorskie
Witam,
Napisalem emaila z zapytaniem o cene dokladnie tego domku-czekam na odpowiedz,z gory dziekuje
KOMENTARZ-Domek jest super!
Witam, jesetem zainteresowana cena takiemu domku z tarasem 5×3 model mazowieckie 55-b.
pozdrawiam
Aneta
chcialbym sie dowiedziec jaka jest cena domku model mazowieckie 55b
Witam jaki jest koszt tego domku. Pozdrawiam.
Witam.
chciałabym sie dowiedzieć jaka jest cena domku Mazowiecki 55 w wersji najtańszej jaką mają Państwo w ofercie.
Pozdrawiam
Witam! http://www.123domki.pl/domki-letniskowe-mazowieckie-55-25m2/#more-1374 jestem zainteresowana takim domkiem i chciałam zapytać ile by mnie kosztował transport do Darłowa? tj.woj.zachodniopomorskie i czy można dodatkowo sobie zbudować kominek w takim domku?
dziękuję i pozdrawiam