Model: Warszawa-65 (lub Warszawa-55 i Warszawa-66)
Seria: Mazowieckie
Powierzchnia: 30m2 (lub 25m2 oraz 35m2 lub większe) + 3,5m2 taras
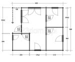
Domy letniskowe Warszawa-65 to parterowe, drewniane domy o wymiarach 6,0m x 5,5m (możliwość zwiększenia lub zmniejszenia wymiarów). Domy wyposażone są w dwie sypialnie, wygodną toaletę, przestronny salon z miejscem na aneks kuchenny. Z zewnątrz domki rekreacyjne Warszawa-65 uatrakcyjnia zadaszenie nad wejściem, tworzące niewielki taras dający schronienie przed deszczem. Istnieje możliwość powiększenia tarasu, tak aby wystawał poza obrys budynku lub jego całkowicie zabudowanie (tak jak w modelu Katowice-65).
Spis treści
Domek drewniany 6×5 z pomieszczeniem gospodarczym
Dodatkowym ciekawym elementem (opcja) w który można wyposażyć dom drewniany Warszawa-65 jest małe pomieszczenie gospodarcze dostępne z zewnątrz albo z wewnątrz (np. na kosiarkę i inny sprzęt ogrodniczy). Jeżeli pomieszczenie gospodarcze jest potrzebne, uzyskuje się je kosztem pomniejszenia łazienki (toalety). Innym rozwiązaniem jest wykonanie przybudówki, tak aby powierzchnia łazienki pozostała niezmieniona
Domek letniskowy 6×6 do własnej aranżacji
Oferując domki letniskowe od producenta dajemy inwestorom możliwość niemal dowolnej modyfikacji projektu, tak aby domek jeszcze lepiej dopowiadał ich specyficznym potrzebom i oczekiwaniom. Oferowany domek drewniany po niewielkich przeróbkach można zmniejszyć do 25m2 powierzchni zabudowy albo powiększyć do dowolnych rozmiarów (np. 6x6m, 6x7m). Metraż domku możemy uzależnić od rozmiaru działki i jej ustawności, a także indywidualnych potrzeb inwestora.
Do domków letniskowych Warszawa-65 istnieje możliwość wybudowania przedłużonego zadaszenia wzdłuż ściany bocznej, które będzie wykorzystywane jako miejsce na przechowywanie drewna kominkowego (drewniana drewutnia).
Domek drewniany 6×5 czy 6×6: Wybieramy najlepszą konfigurację
Wybór odpowiedniego rozmiaru domku drewnianego jest kluczowy dla zapewnienia komfortu i funkcjonalności. Tam, gdzie nie możemy sobie pozwolić na zbyt obszerną zabudowę doskonale sprawdzają się domki drewniane o wymiarach 6,0m x 5,0m oraz 6,0m x 6,0m. Mimo ograniczonego metrażu domki 6×5 i 6×6 oferują wystarczającą przestrzeń na urządzenie przytulnego miejsca do wypoczynku. Wybór pomiędzy domkiem 6×5 a 6×6 zależy od indywidualnych potrzeb i oczekiwań, a nierzadko także możliwości zabudowy danej działki i budżetu. Jeśli Twoim priorytetem jest większa przestrzeń i komfort użytkowania, domek 6×6 będzie lepszym wyborem. Natomiast jeśli zależy Ci na bardziej kompaktowym i ekonomicznym rozwiązaniu dobrą alternatywą może się okazać domek 6×5 lub mniejszy.
Domek letniskowy 6×5: Specyfikacja projektu
Domy drewniane Warszawa-65 o wymiarach 6,0m x 5,5m (lub 6m x 6m) wykonane są z suszonego komorowo, struganego balika sosnowego, łączonego na podwójne pióro – wpust o grubości 36mm. Możliwość zwiększenia grubości balika np. do 45mm.
Standardowo dom letniskowy Warszawa-65 wyposażony jest w drzwi zewnętrzne i wewnętrzne pełne, które można zamienić (opcja) na drzwi szklone. Standardowym kryciem dachu jest szara papawierzchniego krycia. Polecamy krycie dachu domu letniskowego gontem bitumicznym w dowolnym kolorze (opcja).
Domek 6×5 na indywidualne zamówienie
Jesteśmy producentem domów letniskowych. Proponujemy domki drewniane na sprzedaż o różnym metrażu i układzie pomieszczeń. Oferujemy możliwość zmiany rozmiarów, indywidualnej aranżacji pomieszczeń oraz zmiany wyglądu zewnętrznego, np. ilość okien i drzwi , przybudówka (narzędziownia). Obsługujemy województwa mazowieckie, łódzkie, pomorskie, śląskie, dolnośląskie oraz pozostałą część Polski i Europy. Inwestorów zainteresowanych zakupem domku letniskowego zachęcamy do szczegółowego zapoznania się z naszą ofertą, a w razie pytań lub wątpliwości do kontaktu.

123Domki.pl to polski producent domków drewnianych, oferujący szeroki wybór modeli letniskowych, ogrodowych i całorocznych, wykonanych z wysokiej jakości drewna sosnowego lub świerkowego, suszonego komorowo i czterostronnie struganego . W ofercie znajdują się domki o różnych rozmiarach i konfiguracjach, takich jak parterowe, z poddaszem czy antresolą, a także garaże drewniane i kioski handlowe . Klienci mogą wybierać spośród gotowych projektów lub zamówić domek dostosowany do indywidualnych potrzeb, z możliwością modyfikacji układu pomieszczeń, dodania tarasu czy innych udogodnień . Dzięki solidnej konstrukcji i estetycznemu wykonaniu, domki 123Domki.pl cieszą się popularnością zarówno w Polsce, jak i za granicą, stanowiąc idealne rozwiązanie dla osób poszukujących funkcjonalnego i przytulnego miejsca do wypoczynku .





















Witam proszę o wycenę domku Warszawa 65 parterowy,z dwoma pokojami ,aneksem,łazienka, toaleta z dowozem.woj opole
Proszę o kontakt w jaki sposób można było się spotkać z Państwem w celu uzyskania informacji i omówienie najlepszej dla nas oferty domku drewnianego i postawienie go na ROD W ŁODZI . Chodzi również o termin
Realizacji jeszcze w tym roku .
Proszę o kontakt w jaki sposób można było się spotkać z Państwem w celu uzyskania informacji i omówienie najlepszej dla nas oferty domku drewnianego i postawienie go na ROD W ŁODZI . Chodzi również o termin
Realizacji jeszcze w tym roku .
Proszę o podanie ceny domku Warszawa 65 powierzchnia 25m2 oraz 35m2.
Dzień dobry
Proszę o wycenę domku:
Domy letniskowe Warszawa-65 ( 25m2 )
z łazienką i jednym dużym pokojem.
Witam jestem zainteresowana domkiem Warszawa 65 powierzchnia 25 m2 oraz 35 m2
witam.
prosze o wycene domu,montażem na bloczkach betonow, gont bitumiczny, ocieplenie podlogi,
ile kosztowac bedzie transport do Szczecina domku Warszawa? domek 5 na 5m,
oczekuje odp.
pozdrawiam
Dzień dobry,
proszę o podanie kosztorysu domku Warszawa-65 dla 30m z montażem.
Pozdrawiam,
Dorota
Witam, proszę o wycenę domku Warszawa 65 o wymiarach 7m x 5m
Witam
Proszę o wycenę domu o wymiarach 6 x 5,5 w całości zabudowany, bez tarasu z łazienka i dwoma pokojami .
Witam.
Proszę o podanie kosztorysu domku Warszawa-65 ( 35m) z montażem na bloczkach betonowych, gont bitumiczny, gmina Przedbórz miejscowość Taras i czas realizacji przyszły rok maj czy trzeba robić zapisy.
Witam
Proszę o wycenę domku Warszawa 65 35 m2 z montażem w Gąskach gm. Mielno z okiennicami krytego papą wraz z fundamentowaniem . Ile trwał by montaż?
Witam. Proszę o wycenę domku Warszawa-65 o pow. 35m2, oraz koszty montażu i transportu na Wyspę Sobieszewska – Swibno.
Witam.
Proszę o podanie ceny domku Warszawa-65 ( 35m) z montażem na bloczkach betonowych, gont bitumiczny
Witam.
Proszę o podanie ceny domku Warszawa-65 ( 35m) z montażem na bloczkach betonowych, gont bitumiczny, malowanie, ocieplenie dachu i transport do Tarczyna.
Witam proszę o kosztorys domku letniskowego Warszawa 65 o wymiarach 6×5,5 czas realizacji zamówienia + Koszt montażu, Sulejówek.
Proszę o podanie ceny domku Warszawa o pow.25m2.Dziękuję.
Proszę o podanie ceny domku warszawa
Witam jak kształtują się ceny przy zakupie Warszawa-65?
Witam.Prosze o nadeslanie mi kosztorysu wraz z cena transportu w okolice Sandomierza i cena montazu.Wersja z dodadkowym ociepleniem tzw.caloroczna z przybudowka na narzedzia.Powierzchnia zabudowy max 35m.
Witam.
Byłbym zainteresowany ceną budowy, transportu oraz samych surowców dla domku warszawa 65 o wymiarach 38m2 + taras ok. 10m2.
Transport w okolice zalewu zegrzynskiego.
Witam. Jaki jest koszt domku Warszawa65? 30m2. Jaki koszt transportu? Zależy mi na stanie surowym zamkniętym?
zainteresowaly mnie domki letniskowe typ warszawa o powierzchni do 35 metrow.prosilbym o kosztorys z montarzem oraz czas oczekiwania w jakim moglby byc wyprodukowany i postawiony.dziekuje z gory za informacje.pozdrawiam
Witam.Jestem zainteresowana domkami Katowice 65 i Warszawa 55,proszę o podanie ceny łącznie z montażem i transportem do Rudy Śląskiej Jaki byłby termin realizacji? Z góry dziękuję.,
Witam.Jestem zainteresowana domkiem letniskowym warszawa 55. Jaki jest koszt tego domku ? Proszę o szybki kontakt.
w nawiązaniu do rozmowy telefoniczne, poproszę o zdjęcia domku typ Warszawa 65 o powierzchni 25m2
Witam serdecznie.
Zainteresowany jestem zakupem domku Warszawa 65 o pow. 25 m2. Proszę o przedstawienie ceny z montażem oraz bez.
pozdrawiam
Witam bylabym zainteresowana kosztem powyzszego domku mieszkam we wloszech i bylabym zainteresowana kupnem wielu domkow
Czekam na wasza odpowiedz
witam jaki jest koszt domku Warszawa 65 (25m2 + taras )
jestem z Piotrkowa
Witam seredecznie. Chciałbym poznać koszt domku wraz z montażem. Montaż i dowóz domku w Płocku. Chodzi o projekt domku o nazwie Warszawa 65.
Interesuje mnie cena domku Warszawa65 oraz Katowice65 w wersji podstawowej Renata
Jestem zainteresowana domkiem do 25 m z poddaszem użytkowym. Proszę o przybliżony koszt
Proszę mi podać cenę tego domku Warszawa 65. Oraz co zawiera cena.
Z góry dziękuję.
Beata Malinowska
czy mozna poznac cene modelu warszawa 65 i innych domkow?
Witam, chciałam się dowiedzieć jaki jest koszt domu o wymiarach 6,0m x 5,5m, domek może stać się domem całorocznym? jaki jest koszt oceplenia takiego domku u państwa? aby postawić taki domek można uniknąć masy formalności? wystarczy samo zgłoszenie czy niestety nie? Pozdrawiam.
Proszę o orientacyjny koszt domku Warszawa 65.
Witam. Zainteresowana jestem domkiem letniskowym warszawa – 65 o pow. 35 m 2 Jaki jest koszt takiego domku z montazem i transportem w okolice krakowa
Interesuje mnie cena domku 25 m hurtowa mogę zamawiać ich większą ilość ponadto posiadam swoje drzewo w lesie starym sosnowym które mogę dać w rozliczeniu mój tel 691244932 sikora izabela
Jestem zainteresowany domkiem letniskowym do 25mkw proszę o wycenę w/w domku. Pozdrawiam Romuald
Proszę o orientacyjny koszt domku Warszawa 65.
jaki jest koszt tego domku http://www.123domki.pl/domy-letniskowe-warszawa-65/
super ten domek czy ktoś byłby tak uprzejmy i podać mi cene samego domku 35m,prosze pozdrawiam
Jaki jest koszt modelu Warszawa-65 6×5,52m2 z montażem
Jaki jest koszt modelu Warszawa 65 na 35 m kw. ?
Witam! Chciałabym zobaczyć taki domek jak Warszawa 65 lub Katowice gdzie może to być możliwe. Mieszkam w Warszawie. Interesują mnie też koszty takiego domku stawianego bez pozwolenia. Proszę op kontakt Bożena Kędzierska
Proszę o kontakt mailowy lub telefoniczny z naszym działem sprzedaży
jaki jest orientacyjny koszt modelu Warszawa-65 6 na 5,5 m2?